Email:

Request in messenger:

Phone number and open hours:
+7 (812) 207-52-94
Mon-Sun 7am – 8pm
Call to order:
8 (800) 511-59-77
Selected city:
St. Petersburg
Mitrofanevskoe Highway, 8AB
  • Надежные бренды и подтвержденные стандарты качества:
Call to order: 8 (800) 511-59-77

Manufacturing metal containers for industries and the military-industrial sector

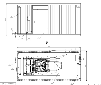
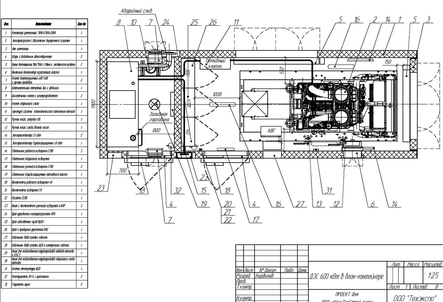
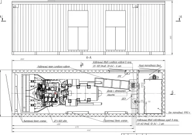
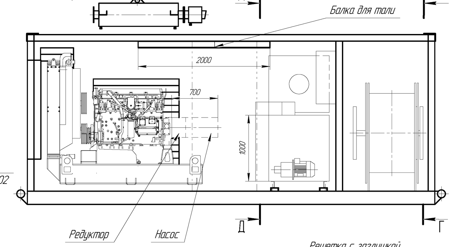
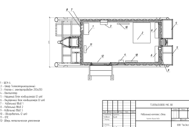
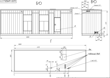
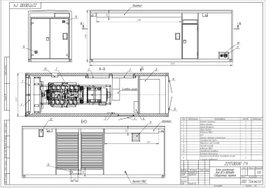
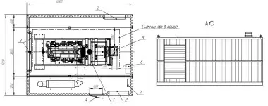
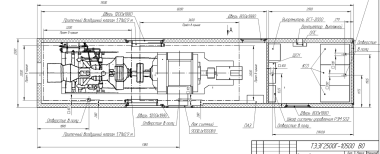
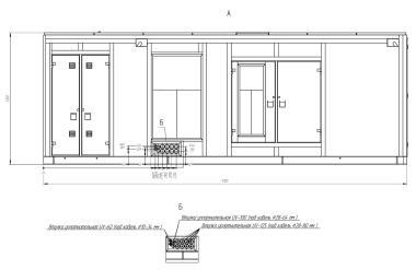
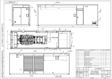
Techexpo LLC manufactures metal containers from 3 to 20 meters long for industrial and power equipment – diesel generator sets, package transformer substations, nitrogen units, modular-type data centers, boiler rooms, compressors, and pumps. It is possible to buy a metal container with the fire resistance rating of a metal all-welded container unit – II.

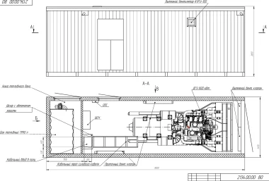
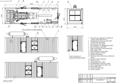
Sever-typed containers are suitable for diesel and gas engine gensets. A stainless steel sheet is simultaneously a shape-generating and strength element: the selection of thickness and section allows improving the capacity.

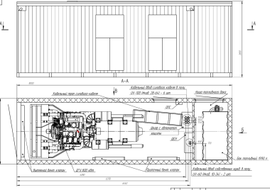
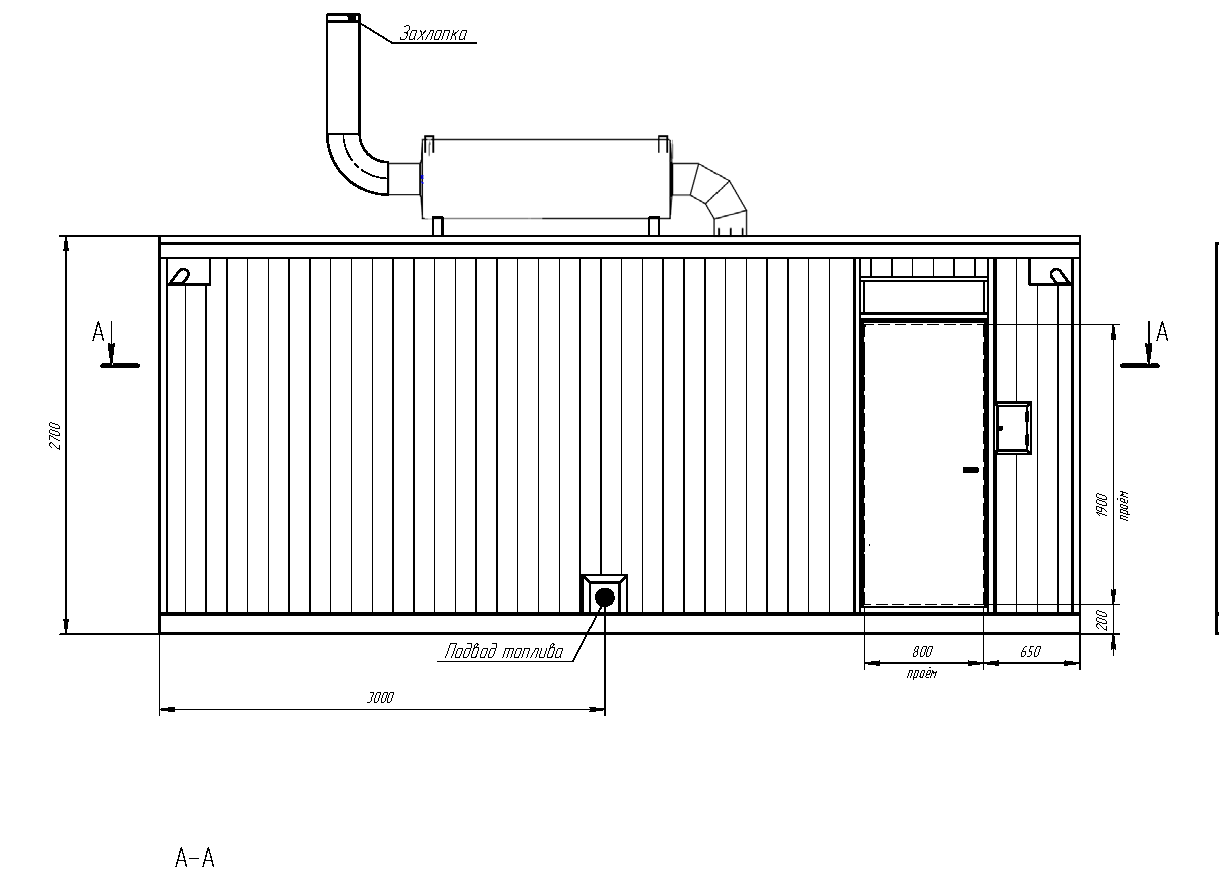
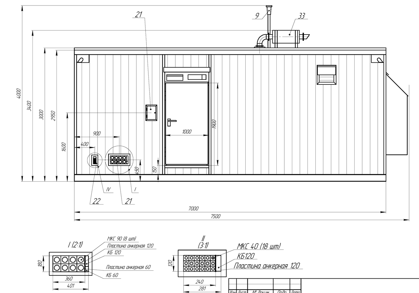
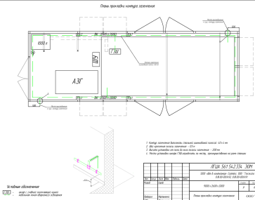
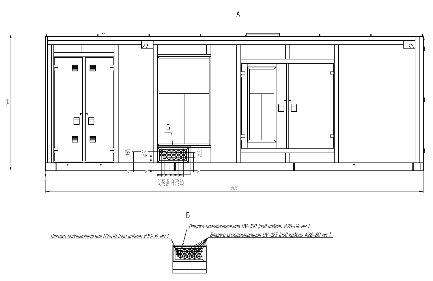
The external shell is made from stainless steel corrugated sheets 1,5 mm thick. The floor is all-welded, made from corrugated steel 4 mm thick, welded onto the metal base and with interrupted weld – to cross-beams. The corrugated sheet enhances stiffness, which rules out the violation of geometry and divergence of assemblies when transporting and loading. The internal wall and ceiling are clad with a corrugated metal light gray sheet. The covers of openings are made from steel sheets at least 1,5 mm thick, equipped with lock pins for the open position and latches for the closed position.

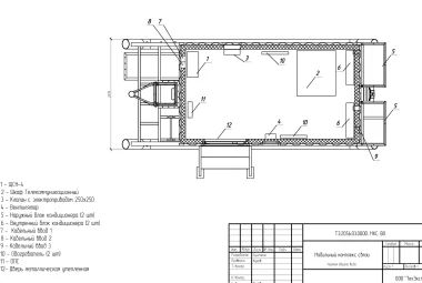
We manufacture metal containers:

The fitness for doing subsequent insulation and finishing of the structure distinguishes our containers from "sea" ones. The container has non-combustible heat insulation and is designed to operate in the ambient temperature range from -50 to +50o С. The technological opening for installation and dismantling of the main equipment is in the end wall of the container combined with the exhaust valve. Ventilation hatches with louvre grilles are installed in them and covers above them are from the outside of the container.

Request quote on order+container@tech-expo.ru


Techexpo projects with manufacturing containers over 2021-2022:

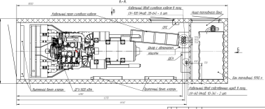
  • Two 13-ton containers on the chassis 14 m long for a 4 MW diesel generator at the Ruppur Atomic Power Station

    State Corporation Rosatom

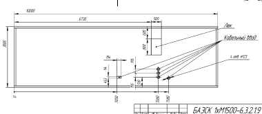
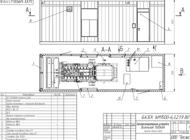
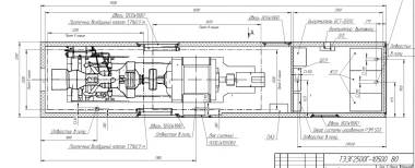
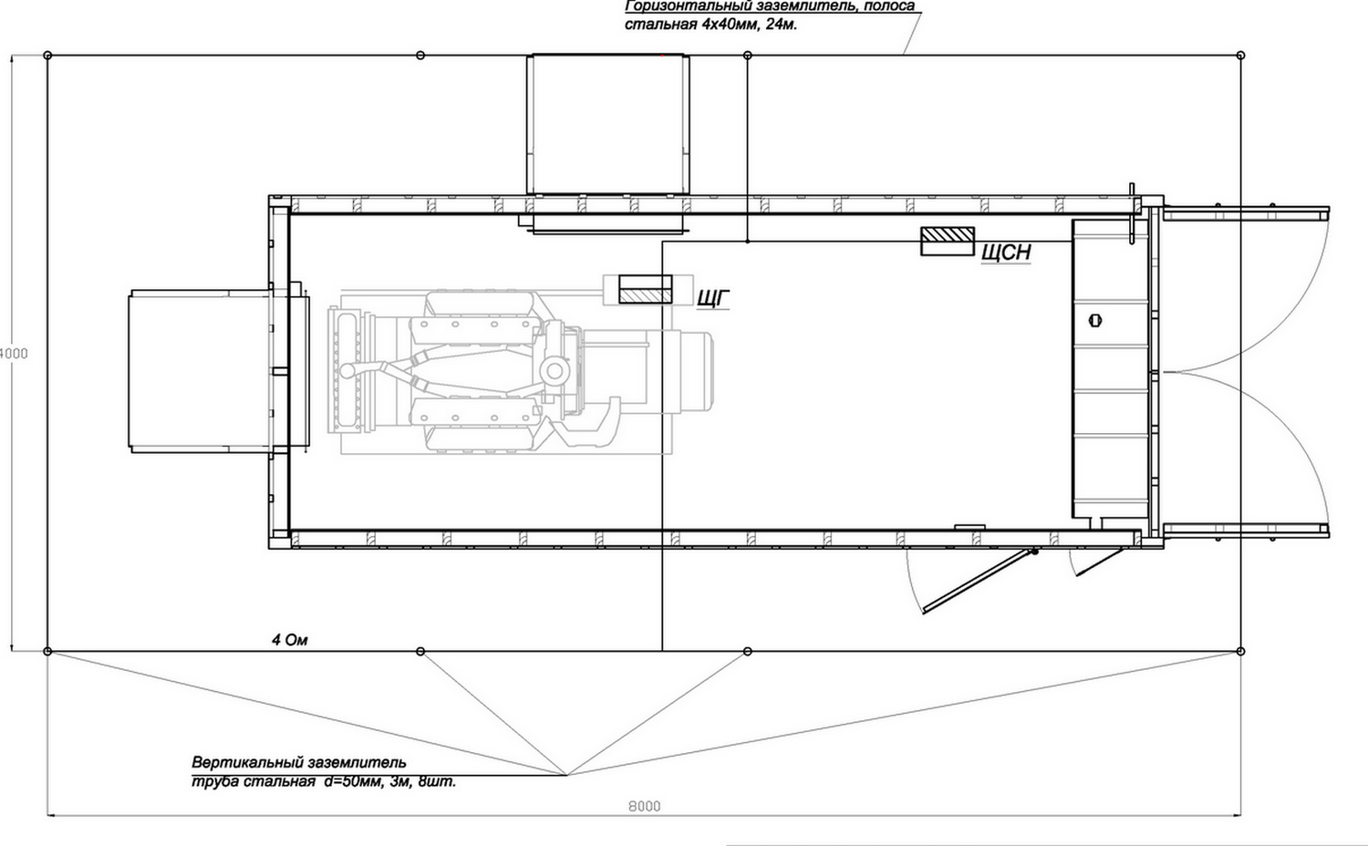
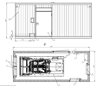
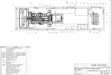
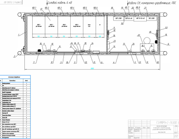
    In February 2022, Techexpo LLC manufactured 2 14000х3200х4700 mm containers for two diesel generators 2 MW each. They are mounted on wheeled car semitrailers of 14000х3200х4700 mm dimensions. The design ensures its secure mounting.

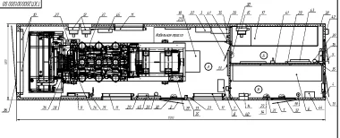
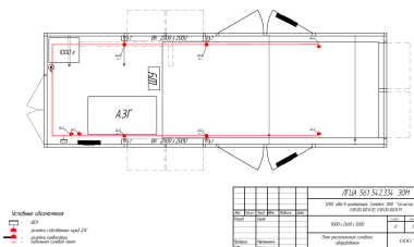
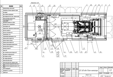
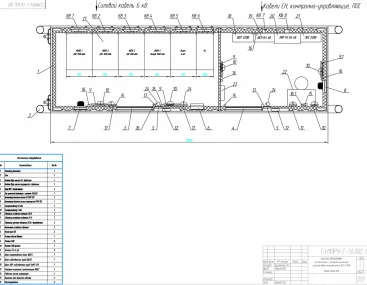
    Container units are divided into sections: a fuel tank is in the fuel section; in the assembly section – diesel generator, battery box, manual fuel pump; in the electrical section - switchboard equipment for control automation systems and security alarm devices. The compartments are separated by a sound-proofing partition. The partition of the fuel section and the door to the adjacent section have a 2nd degree of fire resistance. Each section has two emergency exits. A viewing window made of heat-resistant glass is provided in the door leaf between the compartments.

  • Four containers for a 3 MW power supply package of a Rosgeologiya JSC driller

    Rosgeologiya JSC

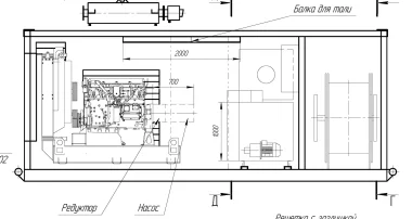
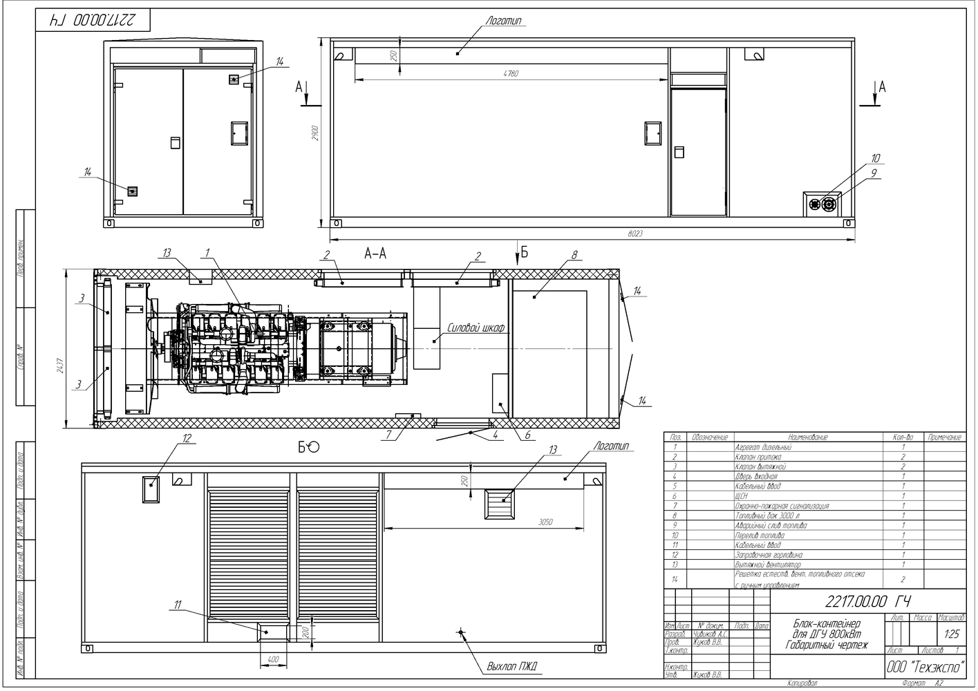
    The power supply package is made of four units: three 12500х2450х3000 mm containers on a sled for three Cummins diesel generators and the container of the control module where the 6.3 kV switchgear room and the operator's room are located.

    The containers are equipped with fuel, oil systems, cooling, control, lighting, heating, ventilation, fire safety, gas exhaust systems. In the 6.3 kV switchgear room, high-voltage switchgear, an operative supply cabinet, and an auxiliaries board are installed. The power supply package is designed to be used as the main source of power supply for the drilling rig via the 6.3 kV line.

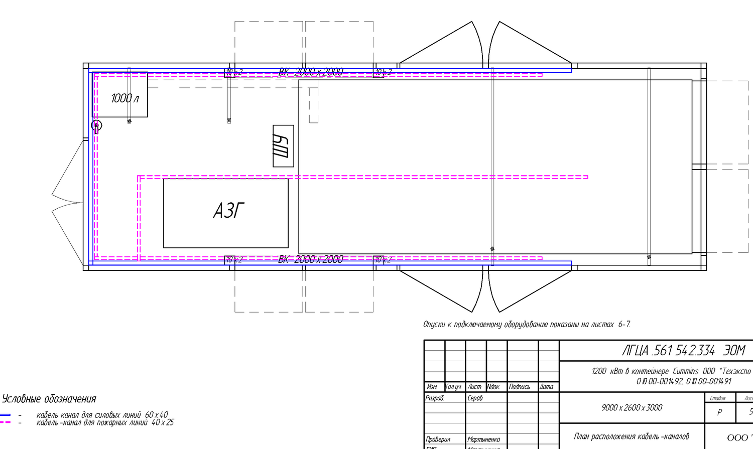
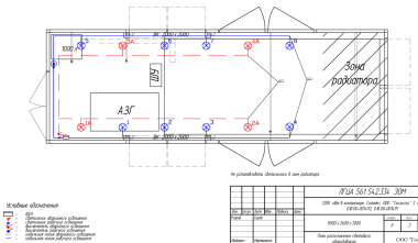
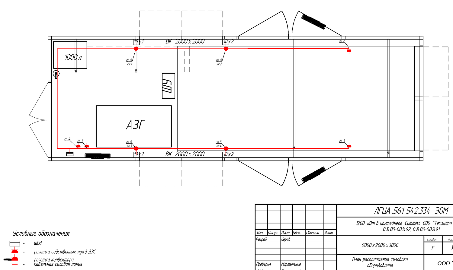
  • Two containers of a 1200 kW power supply package for Generium biologic drug manufacturer

    Generium JSC

    In April 2021, Techexpo LLC manufactured two units for two 600 kW diesel generators. All-welded, dimensions: 7000х2500х3000 mm. An additional 200-liter fuel tank, which is shared between both diesel generators, is placed in one metal container unit. It is connected to a fuel plumbing system to deliver fuel to the second one.

  • Four containers for a 1200 diesel generator in parallel with RU-6,З kV for manufacturing timber products

    Wood processing production

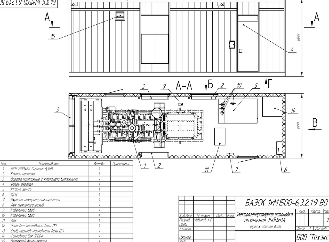
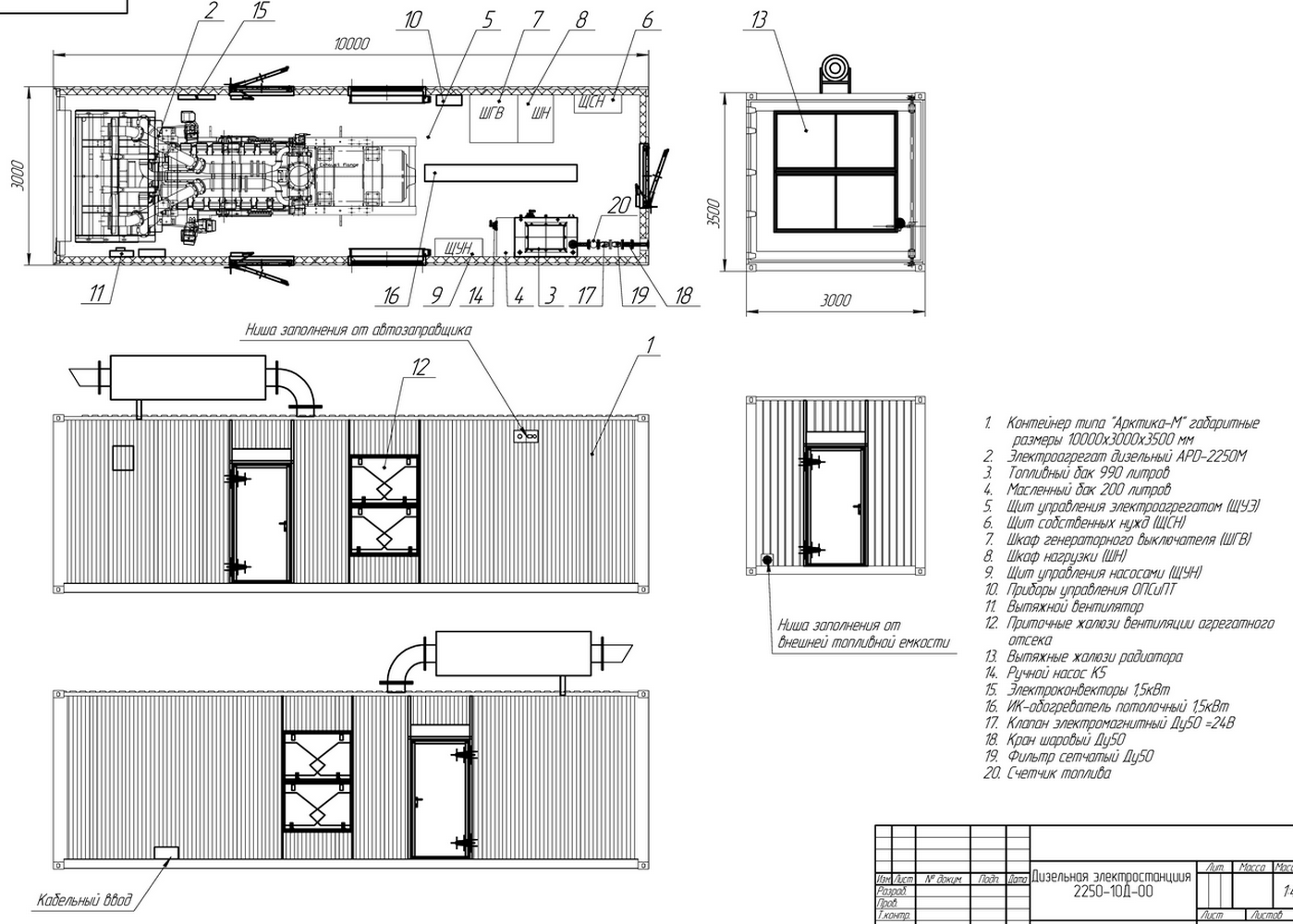
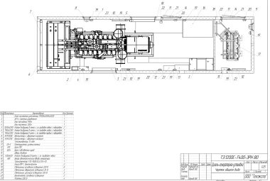
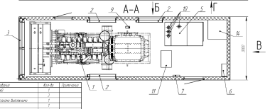
    In 2019 and 2022, at the Techexpo LLC production facilities, four heat-insulated all-welded containers for four diesel generators with a voltage of 6.3 kV working in parallel were manufactured. Three Sever-type containers of 9200х2800х3100 mm dimensions and one - 10000х3000х3600 mm. Diesel generators are installed in the containers, and RU-6,3 kV switching gears on KRUS-SESCH-75 cells.

  • Container for ARSMS weather station for Leningrad nuclear power plant-2 (LAES-2)

    In 2019, Techexpo LLC manufactured a metal container for the ARSMS weather station for Leningrad nuclear power plant-2 (LAES-2). An automated radiation situation monitoring system (ARSMS) is designed for continuous monitoring of radiation and weather situations. A power unit, central and network equipment are accommodated.

  • Container with an internal sound-attenuating system for a Moscow business center

    А101 group of companies

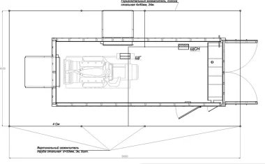
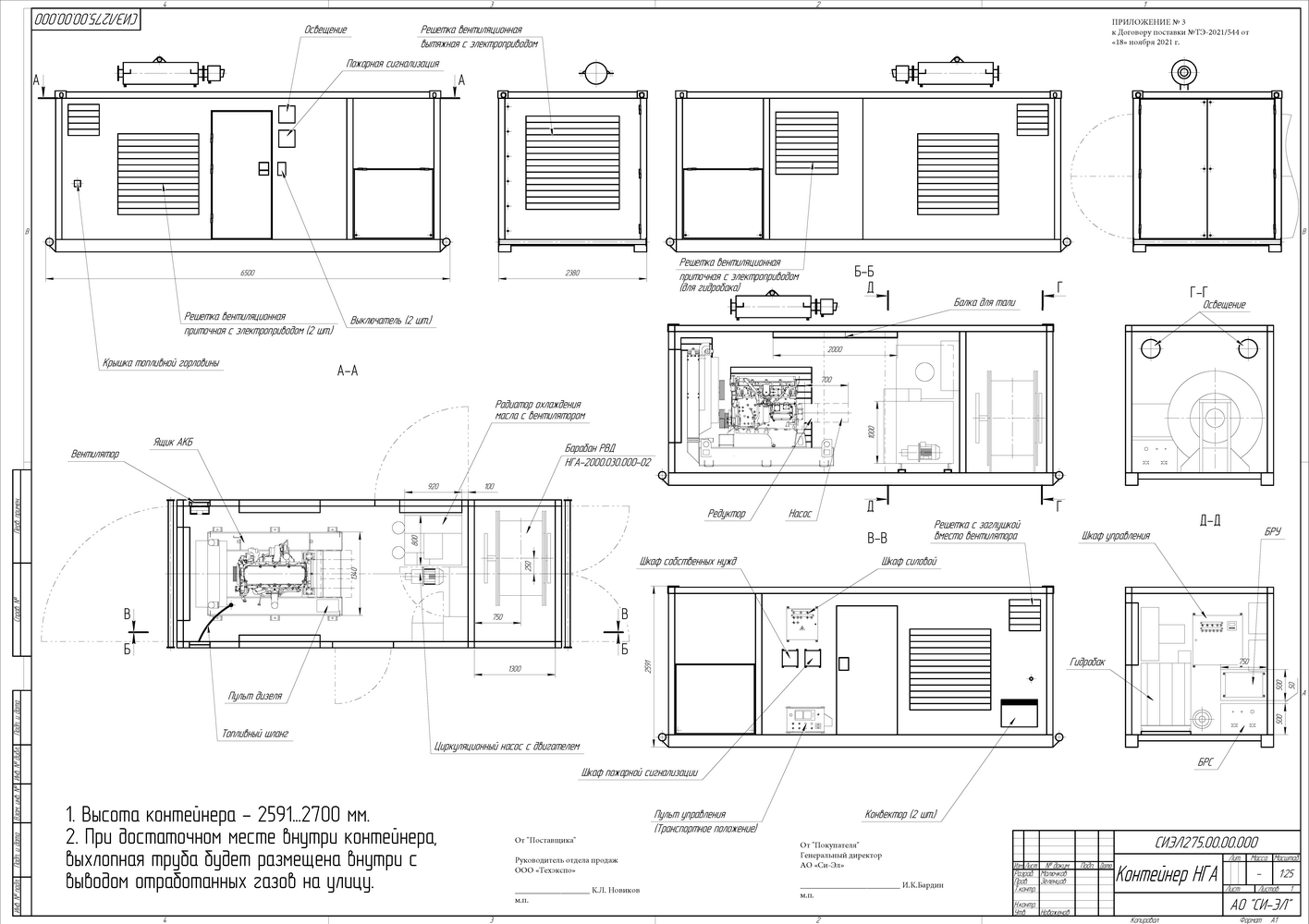
    In July 2022, Techexpo LLC manufactured an all-welded container with a dismountable roof and internal muffler for Prokshino multi-purpose complex in Moscow. Overall dimensions are 6500х5000х3000 mm. The outer surface of the exhaust pipeline of the genset in places of possible access of maintenance staff is isolated with non-combustible material, the assemblies of the passage of the gas exhaust pipeline are isolated relative to the walls and protected against atmospheric fallouts.

    A removable roof is provided above the location of the DG. The module has non-combustible heat insulation 100 mm thick, the body provides strength, the all-welded floor is made of corrugated steel 3 mm thick and welded to the metal base and crossbars. The roof is flat, with a hidden external drain.

  • Containerized data processing center for Saint Petersburg University of State Fire-Fighting Service of the Ministry of Emergency Situations of Russia

    The Saint Petersburg University of State Fire-Fighting Service of the Ministry of Emergency Situations of Russia

    In 2021, Techexpo LLC manufactured a containerized data processing center for the St. Petersburg University of State Fire-Fighting Service of the Ministry of Emergency Situations of Russia. The container is equipped with monitoring systems, a switchgear with an external by-pass for 250 kVA UPS, PitON ХТ-line 200 kVA UPS, 80 batteries of DELTA HRL 12-260W, 2 battery cabinets. The container is a 13500*3700*3150 mm all-welded structure.

  • Container with 4500-liter fuel tanks for Botkin hospital in Moscow

    Botkin S.P. State-Financed Health Institution City Clinical Hospital, Department of Health of Moscow

    In April 2022, Techexpo LLC manufactured an all-welded container with 4960-liter fuel tanks for DG 1200 for Botkin State-Financed Health Institution City Clinical Hospital of the Department of Health of Moscow. Container dimensions: 9150х2450х2900 mm. It consists of an assembly compartment and three tank sections. A 950-liter tank is installed in every compartment. The floor, walls, and ceiling of the container have a heat insulation layer no thicker than 100 mm.

  • Skid-mounted communication container for Gazprom telecommunication equipment

    Gasprom PJSC

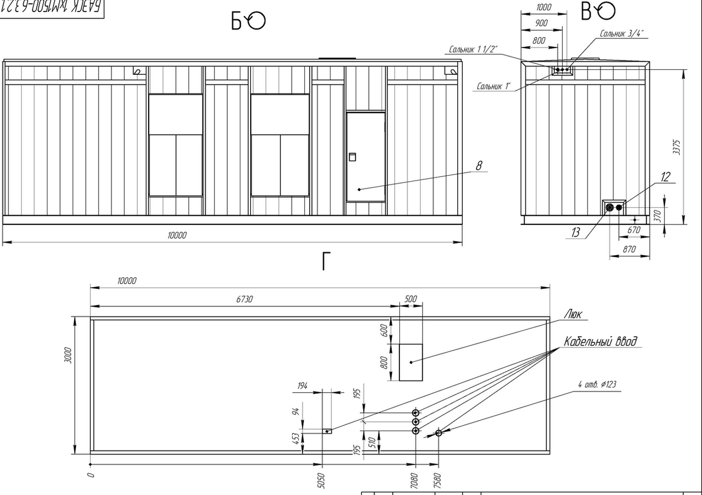
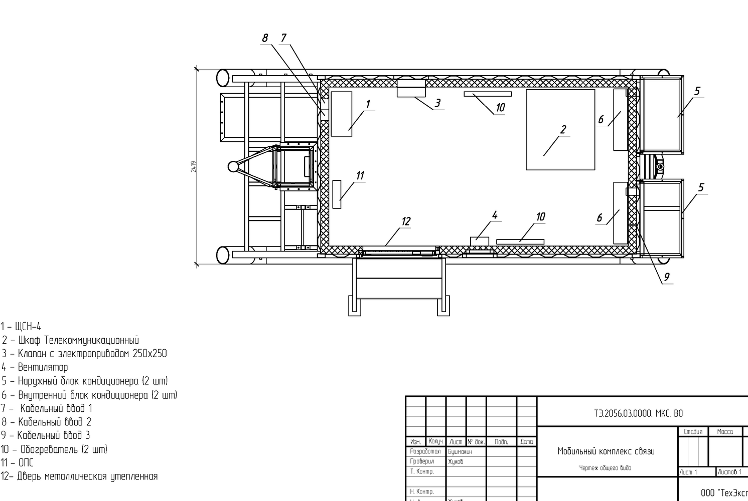
    In 2020, at its production facilities, Techexpo LLC manufactured a skid-mounted communication container for Gazprom telecommunications equipment. Container dimensions - 5795х2420х3100 mm, weight – 4,5 tons, degree of fire resistance according to SNiP 21-01-97 - III. The mobile communication complex is equipped with an automatic fire alarm system, auxiliaries board, air conditioners and heaters, inputs for genset, UPS, and mains. The mast of 4 sections is transported folded together with the skid-mounted container from the end.

  • Three containers for a Cummins diesel generator on standby for a water reservoir

    Vodstroy JSC

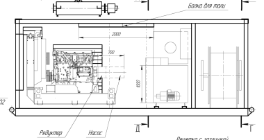
    In 2021, Techexpo LLC manufactured three all-welded, heat-insulated, and vandal-proof containers 9000х3000х3500 mm for three 1200 kW Cummins diesel generators. In the process, it was necessary to modernize the container so that the fuel is fed from the outside. Techexpo engineers managed to implement an extra option – they installed an R 0,8/30-01 hand pump within the container that connected the diesel generator to the external fuel tank.

  • A container as part of a genset for Glavrybzavod FSBI in Karelia

    Glavrybzavod FSBI

    In 2022, Techexpo LLC manufactured a metal container unit of 10000х3000х3500 mm dimensions for 1600 kW diesel generators. This is a heat-insulated all-welded container with in-built systems of gas exhaust, ventilation, heating, lighting, fire safety and others. The genset is designed to be used as a backup source of the power of the 'Glavrybzavod’ selective tribal center of fish breeding in the Sosnovets settlement (Karelia).

  • Two containers for an 800 kW diesel container for a container terminal in Petersburg

    ‘Container Terminal Saint Petersburg’ CJSC

    In 2021, two 8000х2500х2900 mm all-welded modules for ‘Container Terminal Saint Petersburg’ CJSC were manufactured at the Techexpo production facilities. An additional 1000-liter fuel tank and diesel generator with Cummins QST30G4 engine and Stamford HCI634J alternators are placed in each unit.

  • Two container units for a high-voltage power supply package in Ust-Luga

    Chinese national chemical engineering and construction corporation Seven

    In 2021, two container units for a 4 MW high-voltage power supply package were manufactured at the Techexpo production facilities for the Baltic gas chemical complex in Ust-Luga. A DSE 8610 control panel, auxiliaries board, 1000 l fuel tank in the diesel genset frame, generator cell are placed in a 10000 х 3000 х 3450 mm DG.

  • A container for an 800 kW diesel generator and a fuel cell processing non-ferrous scrap

    Nordinves LLC

    In July 2022, Techexpo LLC manufactured a heat-insulated all-welded container of 8000х2500х2900 mm dimensions consisting of two compartments. The assembly compartment contains diesel genset equipment, the fuel tanks – a 3 000-liter full reservoir. Outside the container, a funnel is brought out to refuel from a tanker pistol. The container is mounted on an 849062 car trailer of 20 000 tons capacity. And it attaches to it using twist locks.

  • A module block for processing facilities 12 meters long

    Nevsky Kristall research and production company

    In June 2022, at its production facilities Techexpo company manufactured a module block 12 meters long for Nevsky Kristall research and production company. The unit dimensions for processing facilities are 12000х2400х2600 mm.

  • Container for 640 kW Cummins diesel generator for a hoisting crane in Murmansk

    SMM CJSC

    In 2022, at its production facilities Techexpo company manufactured a metal all-welded container for a 640 kW genset. Dimensions: 6000х2400х2700 mm (LхWхH). Insulation – 100 mm. The unit is designed to operate in the ambient temperature range from -40 to +50°С. The DG is designed to power a self-propelled port crane. The unit is installed directly on it. A 5000-liter separate fuel tank was additionally made. From this tank, the main fuel tank of the diesel generator is refilled automatically.

  • Two containers for 420 and 600 kW diesel generator sets for mining equipment reserve

    UgolExportTrade LLC

    Two container units were manufactured in July 2022 at the production facilities of Techexpo LLC. One module is a 6000х2400х2800 mm metal container unit, it accommodates a 600 kW diesel generator, the second one is of 5000х2400х2600 mm dimensions and a 400 kW diesel generator. Both containers are equipped with systems of ventilation, heating, main and emergency lighting, auxiliaries board, fire alarm system and automatic aerosol fire extinguishing. Loops are provided for upper strapping.

  • Three containers for ‘Belarusneft’ pump unit

    Belorusneft production association

    In February 2022, Techexpo LLC manufactured three all-welded containers 6.5 m long for the 'Belarusneft’ Belorussian state oil and gas company. The containers are made as a metal module made from steel 09G2S (frame). Metal container units are mounted on a sled with the possibility of cable transportation.

    The body consists of two sections – heat-insulated and non-insulated. The heat-insulated section is designed for placing diesel genset equipment. The non-insulated section accommodates a high-pressure hose drum (for a pump). For diesel fueling, there’s a fuel neck with a safety cover outside. Lighting and fire alarm systems are mounted inside both sections.

  • Container for a 320 kW diesel genset for Covid hospital in Murmansk

    “Murmansk Administrative Centre of the Specialized Types of Medical Aid” State Regional Autonomous Health Care Institution

    In 2021, Techexpo LLC manufactured an all-welded metal of 5000х2300х2700 mm dimensions. The container contains a diesel genset with a Scania DC13 072A 02-12 (Sweden) engine and a Leroy Somer TAL047A generator. Manufacturing, installation of equipment, and delivery to the site took only 1 month. The diesel generator reserves the operation of the hospital's vital systems for Covid-19 patients at the "Murmansk Administrative Center of the Specialized Types of Medical Aid” State Regional Autonomous Health Care Institution.

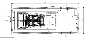
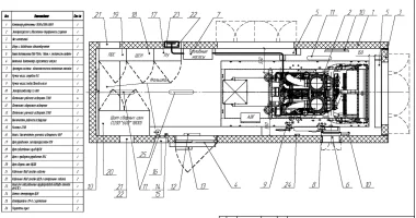
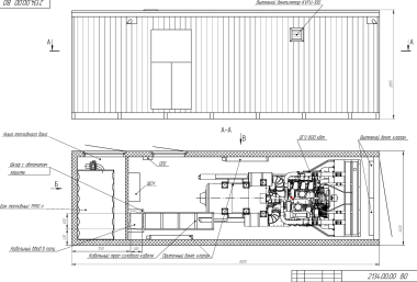
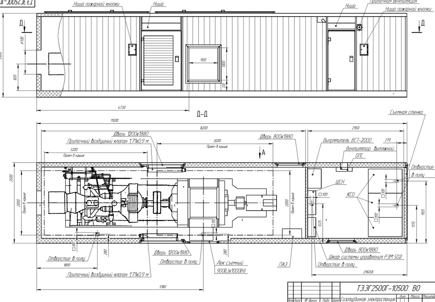
  • Containers for a 2500 kW gas-turbine station

    Features: a special frame for a power plant, removable hatches in the roof above the generator and engine for their installation, ventilation hatches with louvered grilles, and air-controlled valves.

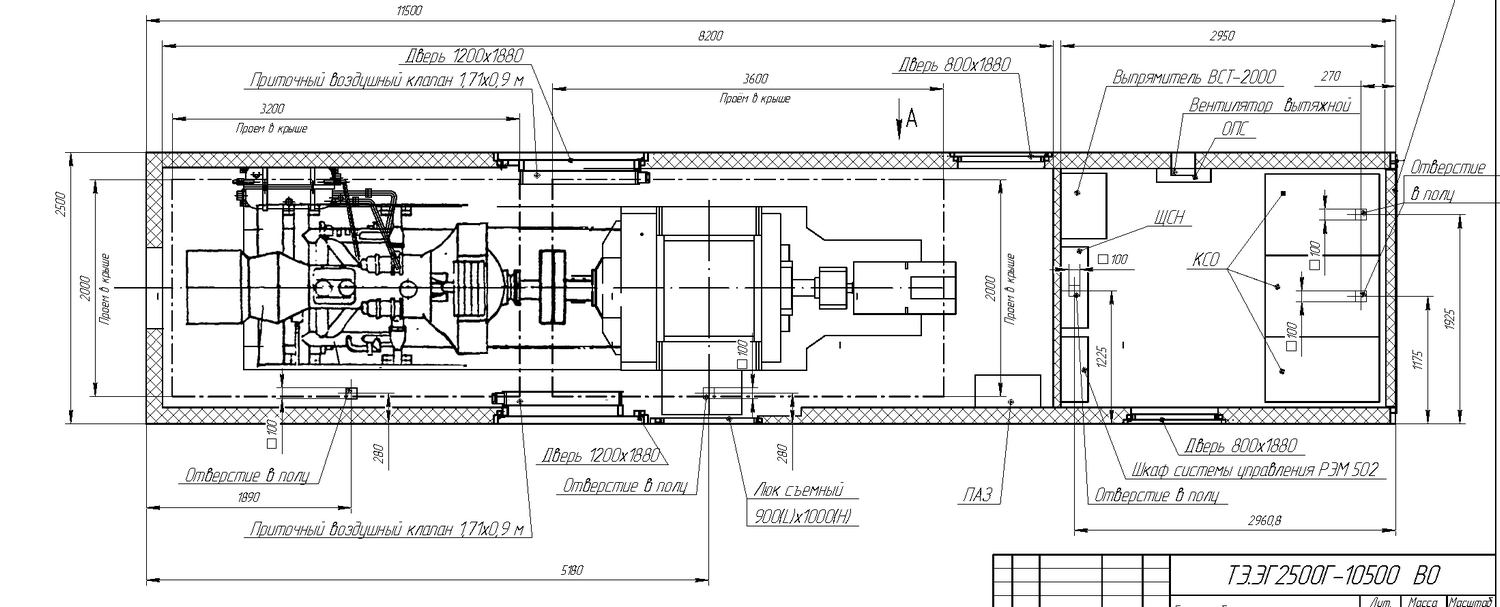
  • Metal all-welded container unit for placing an AES-2500 gas-turbine station

    At its production facilities, Techexpo company manufactured a metal all-welded container for a gas turbine generator. The unit is divided into two compartments - the assembly compartment and the electrical compartment containing high-voltage cells. Dimensions: 11500х2500х2800 mm.

Manufacturing containers for 1-2 MW diesel generators

According to the specification for the production of containers, we will manufacture a power cabinet, an ATS panel, a remote monitoring and control system, up to 15000-liter additional fuel tank.

Packaging containers for 1-2 MW diesel generators



Our company carries out packaging (installation) of equipment into containers of our own production. The modular diesel generator consists of:

  • module block for equipment placement and heat insulation;
  • lighting system (working, emergency, maintenance);
  • heating and ventilating system with heaters and air valves (we independently manufacture IT control centers);
  • exhaust system in the special case made from high-temperature heat insulation;
  • fuel supply system with an additional tank, and a fuel-lift pump to increase the time of autonomous operation of the diesel generator;
  • auxiliaries board controlled by all systems;
  • fire and security alarm and automatic fire-extinguishing system.

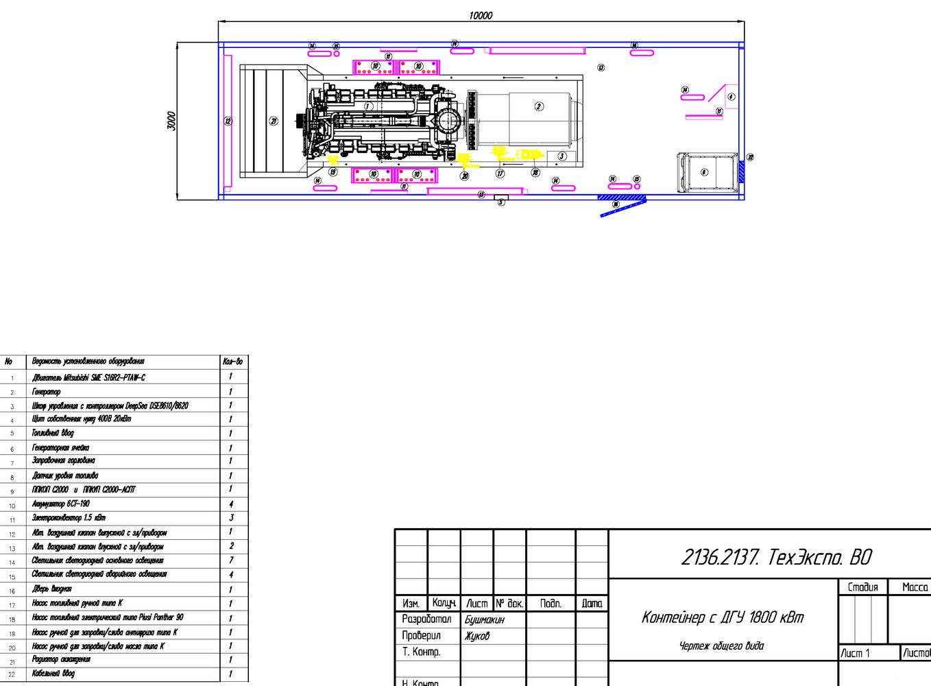
Package of the metal container unit for a 60 kW diesel generator set


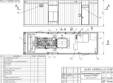
Containers manufactured at our production facilities



 

Manufacturing containers for oil and gas companies


Manufacturing containers in 2020

Manufacturing containers in 2020

  • container for installing frequency inverters and transformers, 8058х2438х3000 mm.
  • container for IT stands and radio equipment: 4500х2430х2600 mm and 9000х2430х2600 mm.
  • container for the uninterruptable power of military equipment (rangers, surveillance systems) 3740*2400*2670 mm.
  • coupled modules for package transformer substations (transformers and switchgears) 8058х2438х3000мм.
  • power supply package for three 8000х9000х3300 mm diesel gensets.
  • oil depot container.
  • 45 foot 13700х2484х2896 mm container



Array
(
    [FORM] => Array
        (
            [ID] => 2
            [IMAGE_SRC] => 
            [FIELD] => Array
                (
                    [0] => Array
                        (
                            [ID] => 15
                            [SID] => NAME
                            [TITLE] => Имя
                            [REQUIRED] => 1
                            [FIELD] => Array
                                (
                                    [0] => Array
                                        (
                                            [ID] => 10
                                            [NAME] => form_text_10
                                            [TYPE] => text
                                            [PARAM] => minlength='3'
                                        )

                                )

                        )

                    [1] => Array
                        (
                            [ID] => 16
                            [SID] => PHONE
                            [TITLE] => Телефон
                            [REQUIRED] => 1
                            [FIELD] => Array
                                (
                                    [0] => Array
                                        (
                                            [ID] => 11
                                            [NAME] => form_text_11
                                            [TYPE] => text
                                            [PARAM] => 
                                        )

                                )

                        )

                    [2] => Array
                        (
                            [ID] => 17
                            [SID] => EMAIL
                            [TITLE] => E-mail
                            [REQUIRED] => 1
                            [FIELD] => Array
                                (
                                    [0] => Array
                                        (
                                            [ID] => 12
                                            [NAME] => form_email_12
                                            [TYPE] => email
                                            [PARAM] => 
                                        )

                                )

                        )

                    [3] => Array
                        (
                            [ID] => 66
                            [SID] => COMPANY
                            [TITLE] => Компания
                            [REQUIRED] => 
                            [FIELD] => Array
                                (
                                    [0] => Array
                                        (
                                            [ID] => 63
                                            [NAME] => form_text_63
                                            [TYPE] => text
                                            [PARAM] => 
                                        )

                                )

                        )

                    [4] => Array
                        (
                            [ID] => 18
                            [SID] => TEXT
                            [TITLE] => Комментарий / требования к КП
                            [REQUIRED] => 
                            [FIELD] => Array
                                (
                                    [0] => Array
                                        (
                                            [ID] => 13
                                            [NAME] => form_textarea_13
                                            [TYPE] => textarea
                                            [PARAM] => rows='3'
                                        )

                                )

                        )

                    [5] => Array
                        (
                            [ID] => 23
                            [SID] => ITEM
                            [TITLE] => Заголовок формы
                            [REQUIRED] => 
                            [FIELD] => Array
                                (
                                    [0] => Array
                                        (
                                            [ID] => 18
                                            [NAME] => form_hidden_18
                                            [TYPE] => hidden
                                            [PARAM] => 
                                        )

                                )

                        )

                    [6] => Array
                        (
                            [ID] => 34
                            [SID] => FILE
                            [TITLE] => Файл
                            [REQUIRED] => 
                            [FIELD] => Array
                                (
                                    [0] => Array
                                        (
                                            [ID] => 31
                                            [NAME] => form_text_31
                                            [TYPE] => text
                                            [PARAM] => 
                                        )

                                    [1] => Array
                                        (
                                            [ID] => 30
                                            [NAME] => form_text_30
                                            [TYPE] => text
                                            [PARAM] => 
                                        )

                                    [2] => Array
                                        (
                                            [ID] => 29
                                            [NAME] => form_text_29
                                            [TYPE] => text
                                            [PARAM] => 
                                        )

                                )

                        )

                    [7] => Array
                        (
                            [ID] => 19
                            [SID] => IP
                            [TITLE] => IP пользователя
                            [REQUIRED] => 
                            [FIELD] => Array
                                (
                                    [0] => Array
                                        (
                                            [ID] => 14
                                            [NAME] => form_hidden_14
                                            [TYPE] => hidden
                                            [PARAM] => 
                                        )

                                )

                        )

                    [8] => Array
                        (
                            [ID] => 20
                            [SID] => CITY
                            [TITLE] => Город пользователя
                            [REQUIRED] => 
                            [FIELD] => Array
                                (
                                    [0] => Array
                                        (
                                            [ID] => 15
                                            [NAME] => form_hidden_15
                                            [TYPE] => hidden
                                            [PARAM] => 
                                        )

                                )

                        )

                    [9] => Array
                        (
                            [ID] => 21
                            [SID] => URL
                            [TITLE] => Страница
                            [REQUIRED] => 
                            [FIELD] => Array
                                (
                                    [0] => Array
                                        (
                                            [ID] => 16
                                            [NAME] => form_hidden_16
                                            [TYPE] => hidden
                                            [PARAM] => 
                                        )

                                )

                        )

                    [10] => Array
                        (
                            [ID] => 22
                            [SID] => REF
                            [TITLE] => Реферер
                            [REQUIRED] => 
                            [FIELD] => Array
                                (
                                    [0] => Array
                                        (
                                            [ID] => 17
                                            [NAME] => form_hidden_17
                                            [TYPE] => hidden
                                            [PARAM] => 
                                        )

                                )

                        )

                    [11] => Array
                        (
                            [ID] => 36
                            [SID] => AGREEMENT
                            [TITLE] => Настоящим подтверждаю, что я ознакомлен и согласен с условиями <a href="/agreement/">обработки персональных данных</a>
                            [REQUIRED] => 
                            [FIELD] => Array
                                (
                                    [0] => Array
                                        (
                                            [ID] => 33
                                            [NAME] => form_checkbox_33
                                            [TYPE] => checkbox
                                            [PARAM] => 
                                        )

                                )

                        )

                )

        )

    [FILES_MAX] => 3
    [FILES] => Array
        (
        )

)