Email:

Request in messenger:

Phone number and open hours:
+7 (812) 207-52-94
Mon-Sun 7am – 8pm
Call to order:
8 (800) 511-59-77
Selected city:
St. Petersburg
Mitrofanevskoe Highway, 8AB
  • Надежные бренды и подтвержденные стандарты качества:
Call to order: 8 (800) 511-59-77

500 kW containerized diesel genset for a gold mine in the Irkutsk region

Total capacity 500 kW
Client Vysochayshiy PJSC (GV Gold)
Фото
Solution

In 2022, Techexpo company delivered a 500 kW DG for a gold mine in the Irkutsk region at Vysochayshiy mining and processing works.

The Golets Vysochayshiy deposit is located 175 km away from Bodaibo city and includes three gold recovery plants, an assay and analytical laboratory, an open-pit mining lot and placer mining lot, workers’ camp. The total power of the processing plants at Vysochayshiy gold mine is about 4,5 million tons of ore per year.

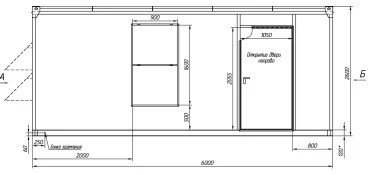
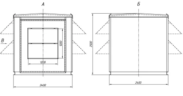
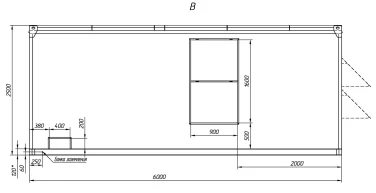
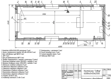
A TE.500С-T 400-2РRN diesel genset is manufactured in a container version. The DG based on a Doosan DP180LB engine has a power of 500 kW. A heat-insulated all-welded container of 6000х2400х2500 mm dimensions is painted in the branded color of the client.

As part of the genset: auxiliaries board, ATS, switchboard, air ventilation and exhaust system, emergency and outline lighting, heating system, system fire and security alarm system.

Spare parts, tools and accessories are additionally included: a kit of oil, air, and fuel filters and a kit of drive belts and a generator.

The DG was delivered from the production facilities for a consignee in Bodaibo city, Irkutsk Region.

Order the budget estimation for a similar project - make a request to

We’ll send an engineer to your site for free pre-project inspection, select equipment, develop the budget.

Next project

Форма заявки