| Total capacity | 600 kW |
| Client | Сonstruction company |
| Фото | |
| Task | to offer a backup power supply source of medium capacity in a container design for the Customer's facility in a turnkey format, taking into account the place of delivery and climatic features. |
| Solution | to supply a 600 kW diesel power plant in a sandwich panel container and carry out a full range of commissioning work. |
In accordance with the terms of reference, an optimal and cost-effective solution was proposed, which made it possible to solve the main tasks of the project, while at the same time making it as profitable as possible for the Customer.
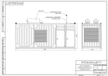
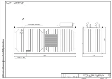
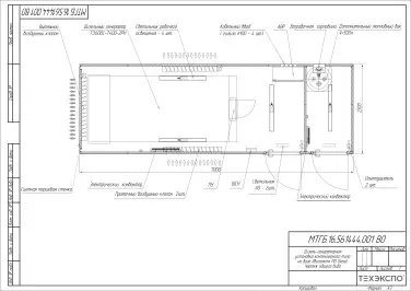
The TE.600S-T400-2RN diesel generator set manufactured by Techexpo with a rated power of 600 kW was chosen as a backup power source: fuel consumption at 75% load is 148 liters/h. The DGS was delivered in a lightweight container made of sandwich panels with 50 mm insulation, which made it possible to reduce the cost of delivery, but nevertheless protect the equipment from negative environmental factors.

Characteristics of TE.600S-T400-2RN
Main power — 600 kW / 750 kVA
Standby power — 660 kW / 825 kVA
Rated current — 1083 A
DGS MD 52DR MK3 Control Panel
Dimensions (LxWxH) — 3580x1740x2440 mm
Dry weight — 4,790 kg
Fuel tank in the frame — 1100 liters
Model — MDW 840 12VTE
Country of manufacture — China
Rotation speed — 1500 rpm
The engine capacity is 28.3 liters
The number of cylinders and their arrangement are 12 / V-shaped
Model — MD-SA-600 (B)
Type — synchronous
Number of phases — 3
Frequency — 50 Hz
The output voltage is 400 V
Container Characteristics
Container type — PBK-7V, insulation 50 mm, Temperature range -40 to +40 ° C
Dimensions (LxWxH) — 7000x2300x2965 mm
The container is equipped with the systems of: lighting (main and emergency), safety (automatic alarm systems and powder fire extinguishing), ventilation (valve-based supply and exhaust ventilation), heating (electric convectors (220V) with thermostats), power supply (self-catering shield), fuel and gas pipes (pipeline and industrial muffler).
The warranty period for the equipment and the work performed under the project was 12 months or 1,000 operating hours.
