Email:

Request in messenger:

Phone number and open hours:
+7 (812) 207-52-94
Mon-Sun 7am – 8pm
Call to order:
8 (800) 511-59-77
Selected city:
St. Petersburg
Mitrofanevskoe Highway, 8AB
  • Надежные бренды и подтвержденные стандарты качества:
Call to order: 8 (800) 511-59-77

Six 8,8 MW DGs as part of a power center at Mriya Resort & SPA

Total capacity 8800 kW
Client Mriya hotel
Фото
Solution

In February 2022, Techexpo company delivered six DGs with a total power of 8,8 MW for Mriya Resort & SPA health resort institution.

Mriya Resort & SPA is located in the territory of 64 ha and includes a 5-star hotel, 37 villas, a health care center, the Institute for Active Ageing Mriya Life, Russia’s first center of wine tourism Winepark, Europe's largest 'Japanese garden', Dreamwood family thematic part, restaurants with various cuisines of the world, bars, Foster nightclub, a balneological complex, a high-profile SPA, own beach with water rides.

Two diesel gensets with a power of 2000 kW

TE.2000S-T400-2RN Two diesel gensets with a power of 2000 kW each were manufactured based on an  MTU 16V4000G34F (Germany) engine and a MeccAlte ЕСО 46 - 2L / 4 generator. They are connected as a backup power source to the transformer substation TP-1 and are part of the uninterrupted power supply system for facilities: a cold store, a boiler room, a multi-level parking lot, a welcome center, repair zone facilities, a helicopter hangar with a laundry, clear-water reservoirs, external lighting.

When there is power, the DGs do not work and are in standby mode. The DG starts when there is a power failure on the RUNN TP-1. When voltage is restored, the circuit breaker turns off. The DG automatically stops after a cooling cycle and goes into standby mode.

The system provides a manual control mode for scheduled start-ups, repair and adjustment work.

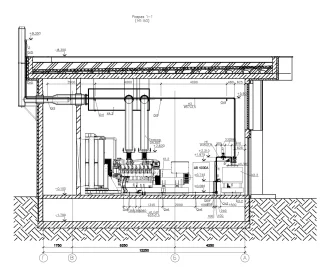
The open-type gensets are located in the building of the transformer substation in a separate room for every diesel genset

A transformer substation building combined with a diesel genset


Configuration of TE.2000С-Т400-2RN (MTU) DG with a power of 2000 kW:

  • MTU 16V4000G34F diesel engine.
  • MeccAlte ЕСО 46 - 2L / 4 generator.
  • Systems of cooling, air intake, electric starter system.
  • The DG TE.2000S-T400-2RN exhaust system includes a catalytic converter in addition to the manifold and bellows compensator. It acts as a silencer and reduces exhaust noise by -35 dB.
  • Oil and fuel systems.
  • Steel frame with shock absorbers mounted between engine/generator and frame.
  • Diesel genset control panel based on ComAp industrial microprocessor controller with Russian interface and remote monitoring function.
  • Automatic coolant heater.
  • The generator circuit breaker installed in a separate switchboard next to the DG.
  • Auxiliary switchboard including control of the automatic fuel pumping system with the control function in automatic and manual mode

Additional fuel tank (900 l)

Additionally, a metal two-walled 900-liter fuel consumed tank was manufactured for each DG with a system of automatic pumping of fuel from external fuel storage.

The design feature of the tank is inter-wall space, which is filled with nitrogen, a leak sensor is installed in the tank. When one of the walls is depressurized, the nitrogen pressure in the inter-wall space decreases and the operator receives a depressurization signal.

These double-walled tanks provide the necessary level of facility security. Similar tanks are used at gas stations.

To control the fuel level in the tank, there is a fuel gauge and a Eurosens Dominator RS sensor built into the tank, which displays the current readings on the DG control panel.

Included in the fuel tank:

  • 1230x1090x955 mm fuel consumed tank
  • 1410х1090х310 mm tray with a ball valve for fuel draining
  • Leak sensor — DM2005Ex pressure switches – monitors pressure in interstitial spacе.
  • Eurosens Dominator RS fuel gauge unit.
  • fuel tank filling port.
  • threaded fire prevention device.
  • sectional ball cock.
  • ball valve for fuel draining.

The DG delivery package includes VVGngLS 1x240, VVGngLS 5х4, VVGngLS Зхl,5 power cable, ground cables, caps, KIPEV nrLS 4x2x0.6 cables for high-speed data transfer from the controller to the fuel tank. х0,6 для высокоскоростной передачи данных от контроллера до топливного бака.

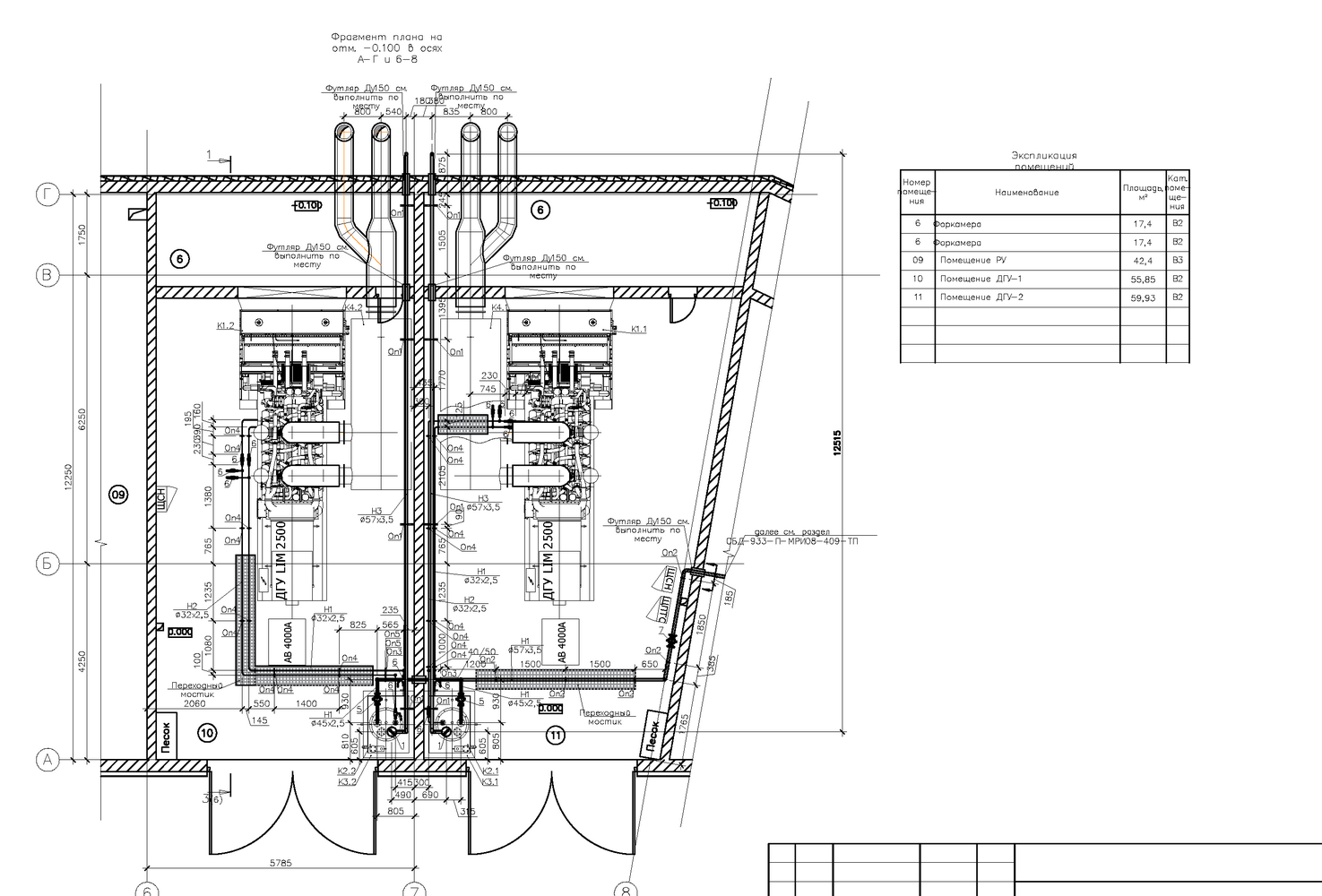
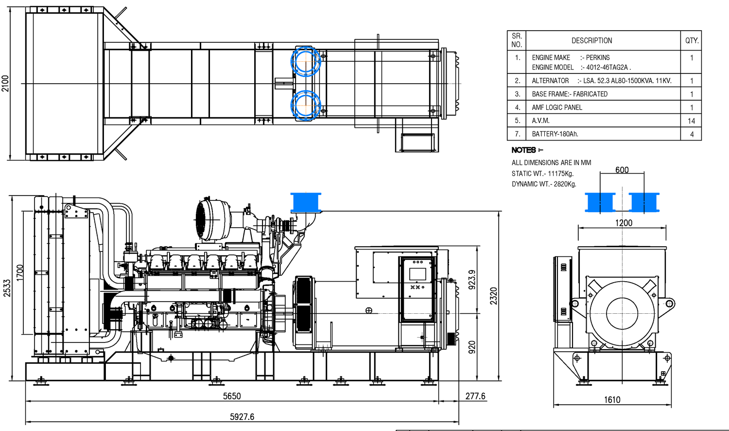
Four diesel genset with a power of 1200 kW

Four TE.1200S-Т10500-2РRN DGs with a power of 1200 kW each with a Perkins 4012-46-TAG2A engine and a Leroy Somer LSA 52.3 AL80 / 4р AC generator are part of the Energy Center of Mriya health resort institution

The energy center includes buildings of a boiler plant and refrigeration machines, sites for a diesel fuel storage warehouse and buildings for an indoor switchgear and a standby diesel generator for emergency power supply.

4 diesel gensets with a total power of 4.8 MW operate in parallel and are a source of emergency power supply at a voltage of 10 kV for the existing electric current collectors of the transformer substation.

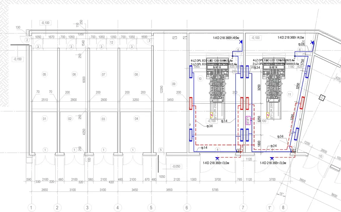
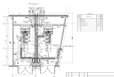
Layout plan of equipment in the building of an indoor switchgear and a standby diesel generator for emergency power supply

Configuration of TE.1200С-T10500-2RN (Perkins) DG:

  • Perkins 4012-46-TAG2A diesel engine
  • Leroy Somer LSA 52.3 AL80 / 4р AC generator
  • Heater
  • Air, oil and fuel filtration system
  • Coolant heating device
  • Battery recharger
  • Exhaust system: exhaust manifold, bellows compensator, muffler.
  • Electric starter system: starter, low-voltage charging alternator, battery.
  • Digital control panel DSE 8610 with a monitoring system and parallel operation.
  • Mounting frame with anti-vibration pads.

Commissioning operations for the DG power supply package of Mriya health resort institution

Techexpo specialists developed programs for commissioning and preparation for the start-up of TE.2000S-T400-2RN (MTU) (2 units) and TE.1200S-T10500-2RN (Perkins) (4 units).

We set up DSE controllers for diesel genset, controlled and adjusted the power ascension of gensets, adjusted sensors, and tested the DGs. During the commissioning, the maintenance staff was instructed on the principles of operation and maintenance of the DGs.

List of performed commissioning activities::

  • Development of working design documentation for TE.2000S-T400-RN (MTU) DG and TE.1200S-Т10500-2RN (Perkins) DGs.
  • Individual and combined testing of each DG at 100% load for 48 hours.
  • Development of SCADA system and telemetry schemes for each DG.
  • Installation supervision at the facility and adjustment of the fuel system, control panels, DG's auxiliaries.
  • Testing 0.4 kV cable lines and 10 kV high-voltage cells.
  • Power transformer testing

Order the budget estimation for a similar project - make a request to

We’ll send an engineer to your site for free pre-project inspection, select equipment, develop the budget.

Next project

Форма заявки