Email:

Request in messenger:

Phone number and open hours:
+7 (812) 207-52-94
Mon-Sun 7am – 8pm
Call to order:
8 (800) 511-59-77
Selected city:
St. Petersburg
Mitrofanevskoe Highway, 8AB
  • Надежные бренды и подтвержденные стандарты качества:
Call to order: 8 (800) 511-59-77

Diesel genset retrofitting by replacing DG-72 to TE.1000

Instructions for the modernization of the power supply system of a 1-6 MW diesel generator


Modernization of the diesel genset power supply system with deteriorated high-voltage equipment on the example of the retrofitting of the Mezenskaya diesel genset in the city of Mezen, Arkhangelsk region, it includes the replacement of the DG-72M diesel generator, the installation of a new gas exhaust system, the installation of a remote electric radiator, the installation of auxiliary equipment for connecting new diesel generators to the energy complex of the diesel generator.

DG-72M-type diesel generators are a high-voltage diesel-electric set manufactured in 1989, 6CHN1А 36/45 е type, power 882,3 kW. Generator voltage: 6300 V. The dimensions of the open-type diesel generator unit: 6360х1960х3390 mm. Weight, 33 100 kg. Three diesel generators work in parallel and are the main and backup sources of electrical power for the Mezen community.


Technological order of main construction and installation operations when replacing a diesel genset:

  • dismantling two sections of walls with windows to lintels;
  • dismantling existing G-72M-type DG-2 and DG-5 diesel gensets;
  • making an opening in the wall for the DG-5 exhaust system;
  • assembling a DG-5 heat recovery unit;
  • rebuilding a DG-5 exhaust pipe taking into account the location of the DG-5 recovery unit;
  • assembling designed diesel gensets;
  • restoring the sections of walls with window openings;
  • excavating foundations and installing foundations of the cooling assemblies of a diesel genset;
  • assembling the structures of cooling assemblies of a diesel genset;
  • assembling communications for connecting diesel gensets;
  • site improvements.



For decommissioning and dismantling two DG-72M, a scheme of element-by-element dismounting of a diesel generator is provided, as well as dismantling and subsequent recovery of part of the diesel generator building wall. The multi-ton diesel generator equipment is moved through the made opening in the building facade using truck cranes.

Dismantling a part of a brick wall with window openings

Dismantling a part of a brick wall with window openings is required to have the possibility of dismantling and loading the diesel generator parts on the truck crane with further removal for disposal. When all installation works are finished, the wall and window openings will be restored. The dismantling of part of the wall 3450 mm high from the top of the foundation to the bottom of the jumper of the diesel generator building 3590 mm wide begins with the dismantling of windows - removing glass from the frame, removing the leaf, dismantling the lining and frame. When dismantling brick walls, the size and weight of the part to be knocked out are determined, the work is done with a sledgehammer or a perforator from the ceiling to the floor.

Construction waste is taken to the existing landfill entered in the SRWDS (state register of waste disposal sites). Waste removal is provided by vehicles to the landfill with the transfer under the contract with a specialized organization with a license for waste recycling.  

Dismantling existing G-72M DG-2 and DG-5 diesel generators

Before dismantling a G-72M diesel generator, decommissioning works are carried out. To this end, it is necessary to drain oil, coolant, fuel from the diesel generator, disconnect external communications of the diesel generator (exhaust system, fuel system, cooling system, electric cable, etc.), remove the equipment, which may prevent dismantling, remove the attachment of the frame of the diesel generator.

  • G-72M diesel generator – dimensions: 6360х1960х3390 mm. Weight: 33 100 kg

Dismantling a diesel generator is carried out element by element. The weight of the diesel generator frame is 6,7 tons, unit - 5 tons, bent shaft - 3,8 tons. Using 5 tons and 3 tons department traveling cranes, the elements to be dismantled are lifted and installed in front of the dismantled opening on stands, then the equipment is loaded onto onboard vehicles by a truck crane with a lifting capacity of 25 tons.

To protect the flooring from punching, a 6000x150x150 beam and a 4x3000x150 steel sheet are provided with support on the existing foundation and the foundation of the wall during re-slinging.

The dismantling of pipelines and stands for fastening the gas pipe, the oil tank, and pipelines from the blind area is carried out element by element without disassembling. Dismantling of the heat-recovery boiler is carried out without dismantling with disconnection of the gas pipe flanges. The concrete grout for the existing DGs is also dismantled.

The equipment to be dismantled is transported by road to Arkhangelsk for further disposal at metal collection points. Partially dismantled equipment is stored at the scrap metal base of the Mezen diesel power station for reuse (if necessary).

Assembling and connection to a new diesel generator

Two diesel generators TE.1000 are mounted on the prepared foundation and attached using anchors. To this end, a protective grade is mounted on the existing foundation with welding to the sunken anchors with subsequent milling together with foundation footing to align the surface.

New diesel generators are loaded into the premises using crane equipment, then DGs are installed on special trolleys and moved to the installation site. After the alignment and fixing of the equipment on the foundation, a grout is made for the equipment, filling the gap between its supporting part and the foundation with a concrete mix.

Installation of pipelines of the fuel supply system with shutoff valves for connection to the existing fuel-supply line was carried out. 

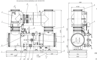
Open-type TE.1000 diesel generator:

  • Mitsubishi S12R –PTA diesel engine
  • Marelli current generator with a voltage of 6.3 kW
  • Diesel engine capacity: 1040 kW

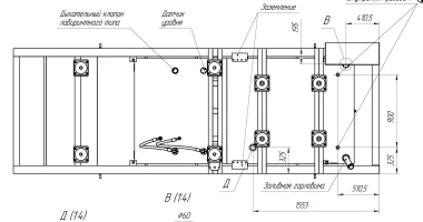
To connect new DGs, 6 kV power cable lines are laid along the construction structures of the cable-support system, 6 kV cable coupling sleeves were installed, cables of 0.4 kV auxiliaries chains were laid, chains of DG relay protection and automatic equipment, DG control circuit, DG telemechanics circuits. The assembly of the cable-support system is carried out including the arrangement of channels in the concrete foundation to fit the tray size. When installing the DG, grounding to the DG was implemented, the remote control panel, fuel tanks and fuel lines, cable channels, and their overlaps.

The assembly of supporting facilities for connecting new diesel gensets into the power complex of the diesel genset:

  • Assembling the DG auxiliaries board
  • Assembling the DG control panel
  • Assembling the DG cooling system panel
  • Assembling the DG remote control
  • Assembling a 125 А three-pole circuit-breaker into existing auxiliaries board
  • Assembling 6 kV current transformers into the existing panels of 6 kV outdoor switchgear
  • Assembling 6 kV switchgear zero-phase sequence current transformers into existing panels
  • of 6 kV outdoor switchgear
  • Assembling static current relays into existing panels
  • of 6 kV outdoor switchgear
  • Assembling intermediate relays into existing panels of 6 kV outdoor switchgear
  • Assembling 1А three-pole circuit-breakers into existing panels of 6 kV outdoor switchgear
  • Assembling ENIP-2-45/100-220-A2Е4х2-21 multi-purpose measuring units into existing panels of 6 kV outdoor switchgear
  • Installing an accumulator battery stand (0,2 t)

Under the commissioning, according to the individual test program, we tested a synchronous generator and a power cable in an electrical laboratory and, measured the resistance of the grounding device, checked relay protection devices, the availability of a circuit between grounded units and elements of a grounded unit, actuation of circuit breakers, phase-zero loop resistance by direct measuring the current of a single-phase short circuit on the body of electrical equipment.

Assembling a remote cooling system and a new gas exhaust system

  • assembling a DG heat recovery unit and exhaust system;
  • rebuilding the DG exhaust pipe considering the placement of a recovery unit;
  • excavating foundations for cooling assemblies of diesel generators;
  • assembling the structures of cooling assemblies of diesel generator and remote heater

The cooling system of the DG is remote. Two dry coolers are assembled on the prepared foundation from the external side of the building. Cooling of the DG is carried out using the environment. A pipeline system from the DG to the heater is assembled inside the premises.

A foundation base for the reliable fastening of equipment was prepared. Ground is developed at the assembly place. Several layers of sand were added to the foundation pit (the thickness of every layer is not less than 20 cm). The sand underlayer is puddled and brought to the required level, it is not subject to heaving, shrinkage, and compression.

Then an underlayer of the chip, which was also puddled with special equipment - a vibrating board - was made. Every new layer is maximally even with the required thickness. This is the base for the reliability of the entire structure.

Solid works for the arrangement of the foundation are carried out using the form setting along the perimeter of the foundation plate, assembly of steel fittings, installation of supporting reinforcing cage and fastening by welding connections with arch welding. The next stage is concreting of the foundation plate.

Supporting steel structures are assembled using welding to embedded parts with installing wall plugs and screws for placing equipment, pipes, and other elements of utility networks. Welding is done to every bracket from three sides.


At the site of placement the next items were manufactured: support for an electric driven pump, supports for pipelines. Communication lines and pipelines to the heater are laid through a manufacturing hole in the wall.

Two Terma 813 kW remote heaters (dry coolers) for 6 fans and pipelines toward them are installed. To keep the pressure in the circulation of liquid in the system of heating and cooling, a Calpeda NM 65/16D/B 400/690/50 Hz electric-driven pump was installed.

A coolant refueling/draining system was assembled, control panel and electrical heater of the coolant were installed.  

Exhaust gas removal system

The removal of engine gases is carried out outside through a designed exhaust system, which does not create excessive to the DG engine.

Supporting structures are assembled for a 1-ton gas exhaust system.

The installed gas-collecting pipeline is isolated and protected from the drops of fuel and lubricants and any combustible products. The outlet of the outlet tube is protected against atmospheric moisture. For the exhaust system, a maintenance opening is made for the exhaust system taking into account the heat recovery unit and an exhaust pipe 7800 mm high of a 325 mm diameter was rebuilt.

The main components of the exhaust gas system:

  • catalytic converter with built-in muffler
  • heat recovery unit
  • exhaust pipe-line
  • pipes without welding seams
  • funnel for removing condensates and rainwater

The heat recovery unit is designed for recovering the heat of exhaust gases of the Mitsubishi S12R-PTA 1040kW diesel generator.

The B65.125A7 heat recovery unit consists of the next main elements::

  • the water-heating intensified gas-tube heat-recovery boiler KUWI-65.125А7 with safety relief valves designed for heat recovery of DG exhaust gases;
  • DG 400 pipeline exhaust gas designed for the exhaust gas inlet/outlet of a diesel generator to the heat-recovery boiler, as well as for their by-passing. There is a ZPGV400B with AOH-020 quarter-turn electric roll drive.

The heat recovery unit is installed in proximity to the diesel generator and is connected to its vent system. The main component of the heat recovery unit is KUWI-65.125А7 heat-recovery boiler. Heat is transferred from the exhaust gas of the genset to the warm water through the tubular heat-exchange surface.


Brick wall reconstruction

Before brickwork, a geodesic layout of axes and layout of wall positions are carried out according to the project, the horizontal of the base for the wall is checked with a gauge, the layout of the position of window openings.

The brickwork is carried out by brick masons of a high level of qualification. The brick mason regulates the accuracy of installation by its plummet and level. Windows are assembled into window openings. The frame is placed using a gauge, it is fastened to the wall, and a window is assembled. After assembly, a gap around the structure is pressure-sealed with foam installation.