Email:

Request in messenger:

Phone number and open hours:
+7 (812) 207-52-94
Mon-Sun 7am – 8pm
Call to order:
8 (800) 511-59-77
Selected city:
St. Petersburg
Mitrofanevskoe Highway, 8AB
  • Надежные бренды и подтвержденные стандарты качества:
Call to order: 8 (800) 511-59-77

1200 kW two high-voltage diesel gensets in parallel with a 6,З kV switchgear for lumber production

Total capacity 2400 kW
Client A lumber factory
Фото
Task

Delivering, manufacturing and installing two containerized high-voltage diesel gensets to provide the industrial equipment of a lumber factory in the Krasnoyarsk territory with electric power.

Solution

In fall 2019, Techexpo delivered two high-voltage diesel gensets with a capacity of 1200 kW each and a voltage of 6,3 kV. Each genset is housed in a heated all-metal container fitted with a 6.3 kV switchgear produced by GK Elektroschit-Samara.

The genset containers are made by Techexpo, diesel genset life-support systems are mounted, high-voltage equipment is connected. The high-voltage gensets will operate at a large-scale lumber manufacturing site in the Krasnoyarsk territory. The overall lumber output of the future mill factory will be about 372,6 thousand cubic meters. The gensets can be the only energy source onsite or they can be united into a power complex in parallel. The parallel operation mode of diesel gensets increases the capacity resource and reliability of the whole generator set.

Operating in parallel, the diesel gensets can provide the lumber factory’s industrial equipment with electric power. In the future, it’s planned to use the diesel gensets as a redundant power source.

The delivered equipment for this project is completed with:

  • two diesel generator sets on the basis of a Mitsubishi engine with a capacity of 1200 kW each and a three-phase power electrical generator of 6300 V output voltage;
  • an automatic control panel with a parallel operation mode DSE8610;
  • a built-in fuel tank – 1000 liters for each genset.

A system of automated fuel feeding from an external tank is provided for a continuous supply of the diesel genset with diesel fuel.

A ‘Sever’ type container 9200х2800х3100 mm - 2 units.

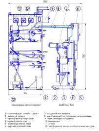
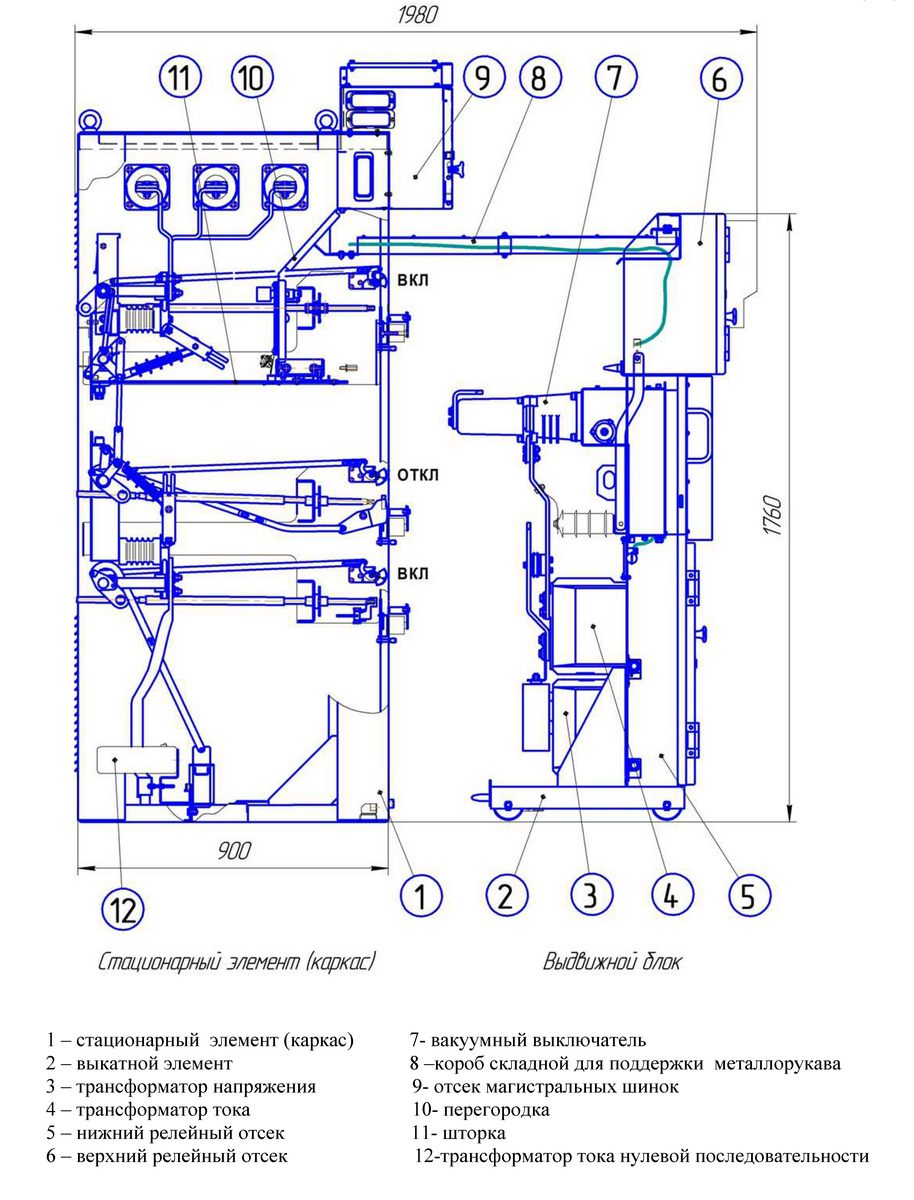
Switchgears RU-6,3 kV are installed in the containers on KRUS-SESCH-75 cells. Due to the compact size, the system provides an immediate power supply with no need for constructing a capital building.

The switchgear cells KRUS-SESCH-75 voltage rating is 6 kV, they consist of individual modules:

  • bus bar section;
  • high-voltage section;
  • relay section.

The high voltage section accommodates a switch, a circuit breaker, current transformers, auxiliary transformers, voltage suppressors, potential transformer on bus bars. The relay section consists of two cabinets with auxiliary circuits tools installed on the faсade side of the slider box. Controls, safety devices, alarm devices and metering instruments are placed in relay sections. Devices inside the cabinet are effectively grounded.

Equipment delivery to the Krasnoyarsk territory was carried out from a warehouse in Saint Petersburg. The diesel gensets were packaged in industrial heat-shrink film. This material is high-tensile and reliably protects the cargo during transportation against exposure (snow, rain, sun, dirt), and preserves the containers’ marketable state and paint coating integrity.

Order the budget estimation for a similar project - make a request to

We’ll send an engineer to your site for free pre-project inspection, select equipment, develop the budget.

Next project

Форма заявки