Email:

Request in messenger:

Phone number and open hours:
+7 (812) 207-52-94
Mon-Sun 7am – 8pm
Call to order:
8 (800) 511-59-77
Selected city:
St. Petersburg
Mitrofanevskoe Highway, 8AB
  • Надежные бренды и подтвержденные стандарты качества:
Call to order: 8 (800) 511-59-77

Mobile skidded communications complex for Gazprom PJSC

Client Gazprom PJSC
Фото
Solution

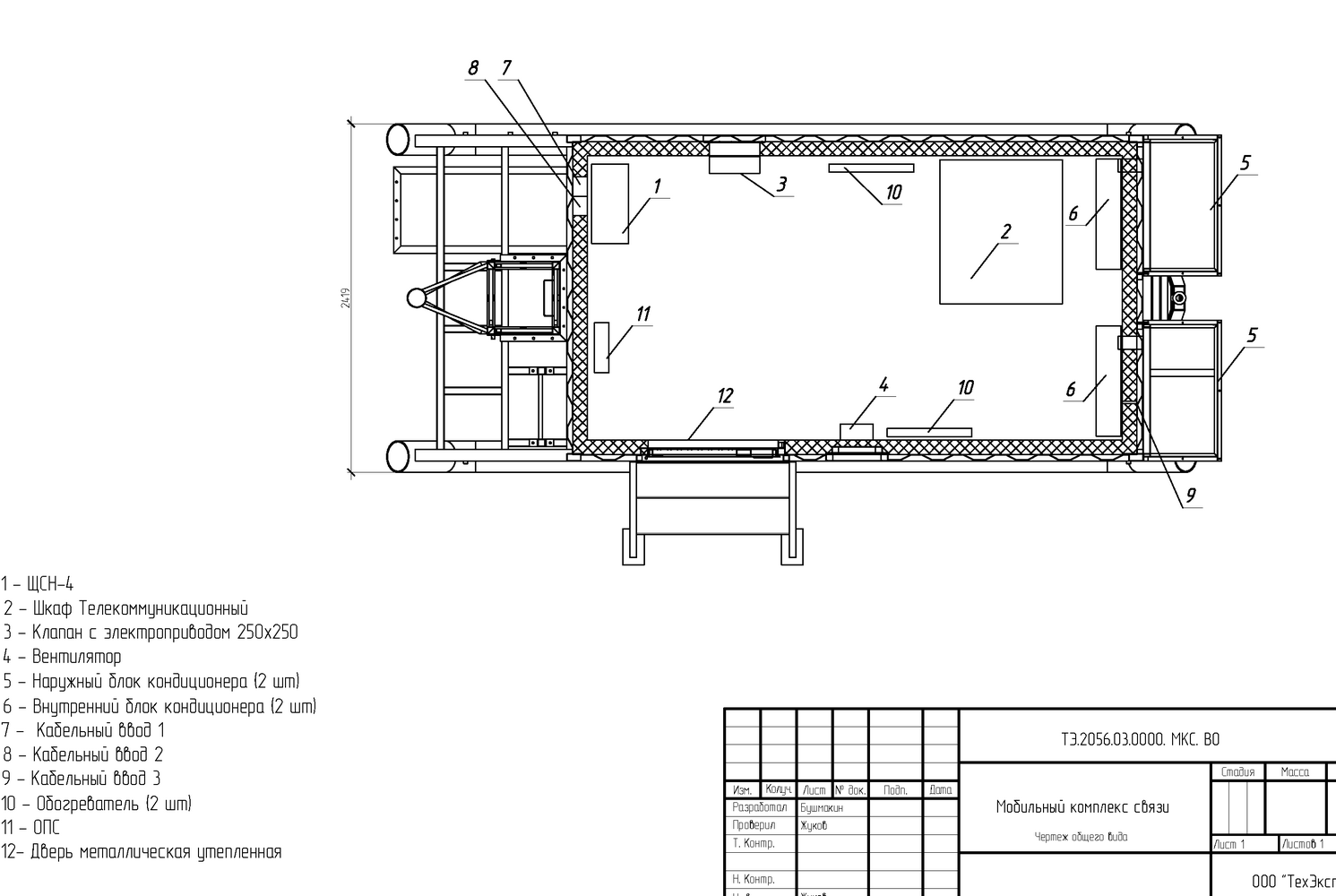
In 2020, Techexpo LLC manufactured a skidded communications container for Gazprom telecommunications facilities. Container dimensions - 5795х2420х3100 mm, weight – 4,5 tons, Fire Resistance Rating according to Building codes and regulations 21-01-97-III. 

The mobile communications complex is fitted with an automatic fire alarm system, an auxiliaries board, AC and heaters, inlets for diesel generator sets, UPS and mains. The 4-section tower is transported folded with the skidded container from the end-face side.

Order the budget estimation for a similar project - make a request to

We’ll send an engineer to your site for free pre-project inspection, select equipment, develop the budget.

Next project

Форма заявки