Email:

Request in messenger:

Phone number and open hours:
+7 (812) 207-52-94
Mon-Sun 7am – 8pm
Call to order:
8 (800) 511-59-77
Selected city:
St. Petersburg
Mitrofanevskoe Highway, 8AB
  • Надежные бренды и подтвержденные стандарты качества:
Call to order: 8 (800) 511-59-77

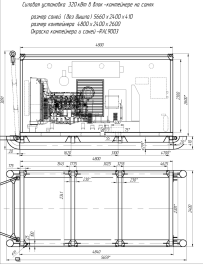
320 kW slid-mounted DG for the Baikal-GVD neutrino telescope (astronomical studies of Joint Institute for Nuclear Research)

Total capacity 320 kW
Client Joint Institute for Nuclear Research
Фото
Solution

The energy consumption of the shore center differs with pronounced seasonality and unsteadiness, especially during peak loads, which fall at the period of winter expeditions. During temporary voltage disconnection in the centralized network, the DG provides the center with power.


Baikal-GVD telescope is one of the largest astrophysical units: the biggest telescope in the Northern hemisphere and the world's second one. Scientists have officially launched it and started to receive the first data.

The unique Baikal-GVD neutrino telescope can register the flows of neutrino super high energies from astrophysical sources. This allows studying the evolution of galaxies and the Universe, as well as solving the key issue of forming the world's neutrino network. The unit is located on Baikal Lake at a distance of 3.6 km off the shore where the lake depth reaches 1366 m. The Baikal-GVD neutrino telescope is being built by an international collaboration with the leading role of the Institute for Nuclear Research of the Russian Academy of Sciences (Moscow city) — a founder of this experiment and area of ‘neutrino astronomy’ in the world, and Joint Institute for Nuclear Research (Dubna city). In total, more than 70 scientists and engineers from ten research centers in Russia, Germany, Poland, the Czech Republic and Slovakia take part in the project.

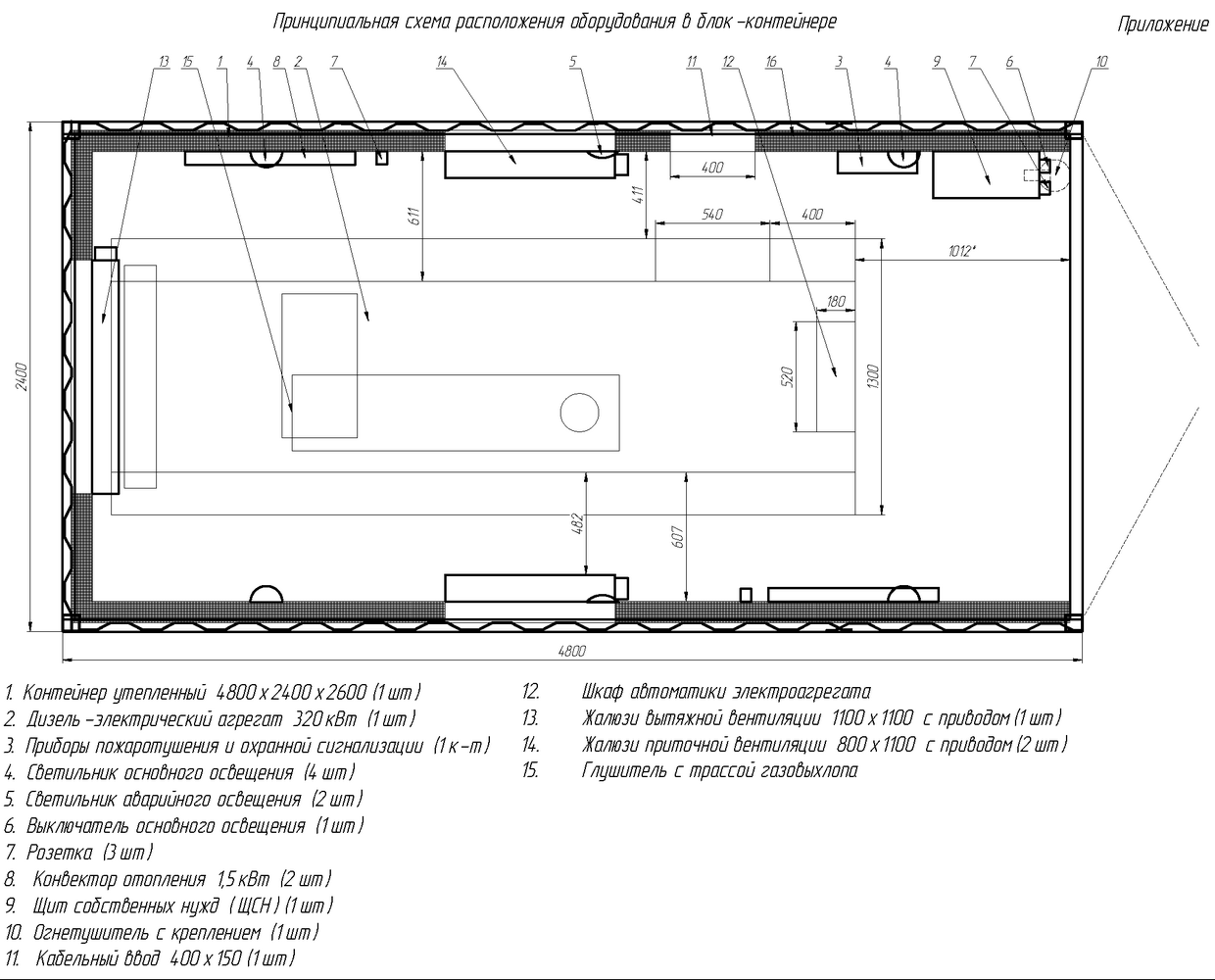
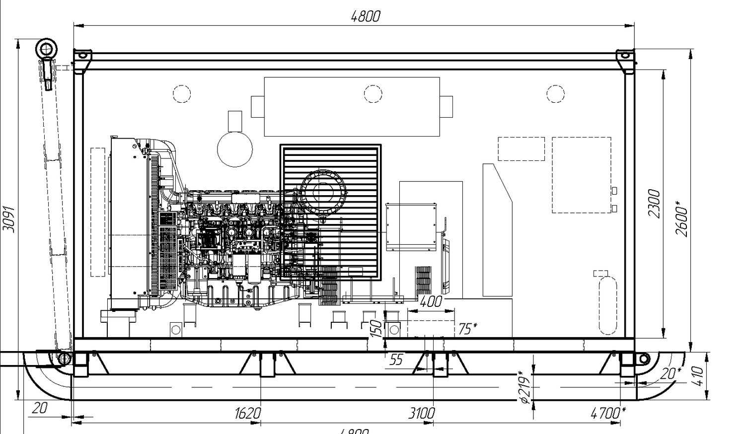
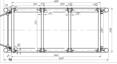
TE.320S-Т400-2RN diesel genset with a power of 320 kW is based on a Baudouin 6M21G400/5 engine. An all-welded container unit of 4800х2400х2600 m dimensions with 100 mm heat insulation is mounted on a skid frame. A 500-liter fuel tank is built into the DG frame and has two filling ports on long opposite sides of the tank. The DG includes an electric coolant heater (with a heater relay) and a battery charger.

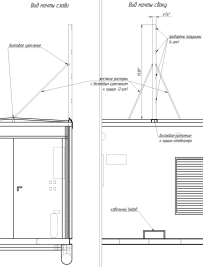
Reinforced skid chassis with a towing device for towing along rocky clastic soils. The container is provided with a mast with fastening for lifting the cable line by 2-2.5 meters above the roof of the container.

The DG is controlled by the DSE 7320 controller, with the possibility of external start from the ATS and transfer of parameters and statuses to the automation system via the RS-485 interface using the Modbus communication protocol.

In addition, the DG remote control was modernized:

  • A basic automation diagram was developed;
  • Analog instruments for monitoring the parameters of the generator, oil pressure and coolant temperature were installed on the panel. Devices work in all modes - automatic and manual;
  • The standard electronic panel at a certain position of the control switch is turned off and the DG control switches to the backup manual algorithm;
  • The Starting Fuel parameter on the speed control was set up for reliable starting

The scope of delivery includes an extended set of spare parts. The DG was delivered to Ivanovka railway station on Lake Baikal.

Baikal neutrino telescope (Baikal-GVD – Gigaton Volume Detector)


Order the budget estimation for a similar project - make a request to


We’ll send an engineer to your site for free pre-project inspection, select equipment, develop the budget.

Next project

Форма заявки