Email:

Request in messenger:

Phone number and open hours:
+7 (812) 207-52-94
Mon-Sun 7am – 8pm
Call to order:
8 (800) 511-59-77
Selected city:
St. Petersburg
Mitrofanevskoe Highway, 8AB
  • Надежные бренды и подтвержденные стандарты качества:
Call to order: 8 (800) 511-59-77

Two 422 kW and 500 kW diesel gensets for the construction of the gas pipeline of the Kharasaveyskoe field in Yamal

Total capacity 900 kW
Client GSP-6 LLC
Фото
Solution

In 2022, Techexpo company delivered two 422 kW and 500 kW containerized gensets for the construction of the gas pipeline-connection of the Kharasaveyskoe gas condensate field.

The Kharasaveyskoe field is located on the Yamal peninsula. The planned production level from Cenomanian Aptian deposits — 32 billion cubic meters of gas per year. To transport the mined bulk a gas pipeline-connection with a length of about 100 km to the Bovanenkovskoe field is being built at Kharasaveyskoe gas condensate field. Then the gas will be supplied to the Unified Gas Supply System of Russia.

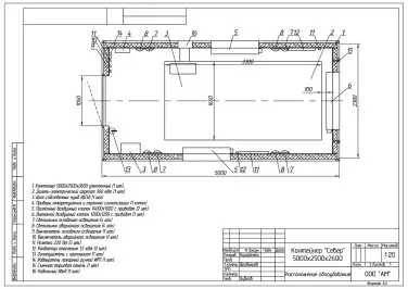
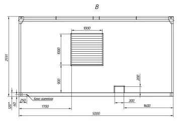
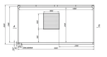
Two TE.400С-Т400-2RN and TE.500С-Т400-2РRN containerized gensets are based on a Doosan DP158LD and Doosan DP180LB Korean engines, CROMPTON G1R355ME current generator. Two all-welded containers with 100 mm thick insulation. Dimensions of each container: 5000х2300х2400 mm. The fuel tank is built into the DG frame (900 l). The DG automatic control panel is based on the TJ509-T microprocessor controller. The genset is equipped with lighting, ventilation, heating, fire alarm and fire extinguishing systems

Order the budget estimation for a similar project - make a request to

We’ll send an engineer to your site for free pre-project inspection, select equipment, develop the budget.

Next project

Форма заявки