Email:

Request in messenger:

Phone number and open hours:
+7 (812) 207-52-94
Mon-Sun 7am – 8pm
Call to order:
8 (800) 511-59-77
Selected city:
St. Petersburg
Mitrofanevskoe Highway, 8AB
  • Надежные бренды и подтвержденные стандарты качества:
Call to order: 8 (800) 511-59-77

800 kW DG Perkins for Boksitogorsk alumina plant (RUSAL)

Total capacity 808 kW
Client RUSAL Boksitogorsk alumina JSC
Фото
Solution

In August 2022, Techexpo company delivered a diesel generator set with an 808 kW Perkins (UK) engine for the Boksitogorsk alumina plant in Boksitogorsk city, Leningrad region.

Boksitogorsk alumina plant is an enterprise of RUSAL company, which produces white alumina, as well as over 90 different products: grinding grains and powders, micro-grinding powders, fire-resistant grains, unshaped fire-resistant mixtures for the metallurgical industry, mechanical engineering, and the production of abrasive materials.

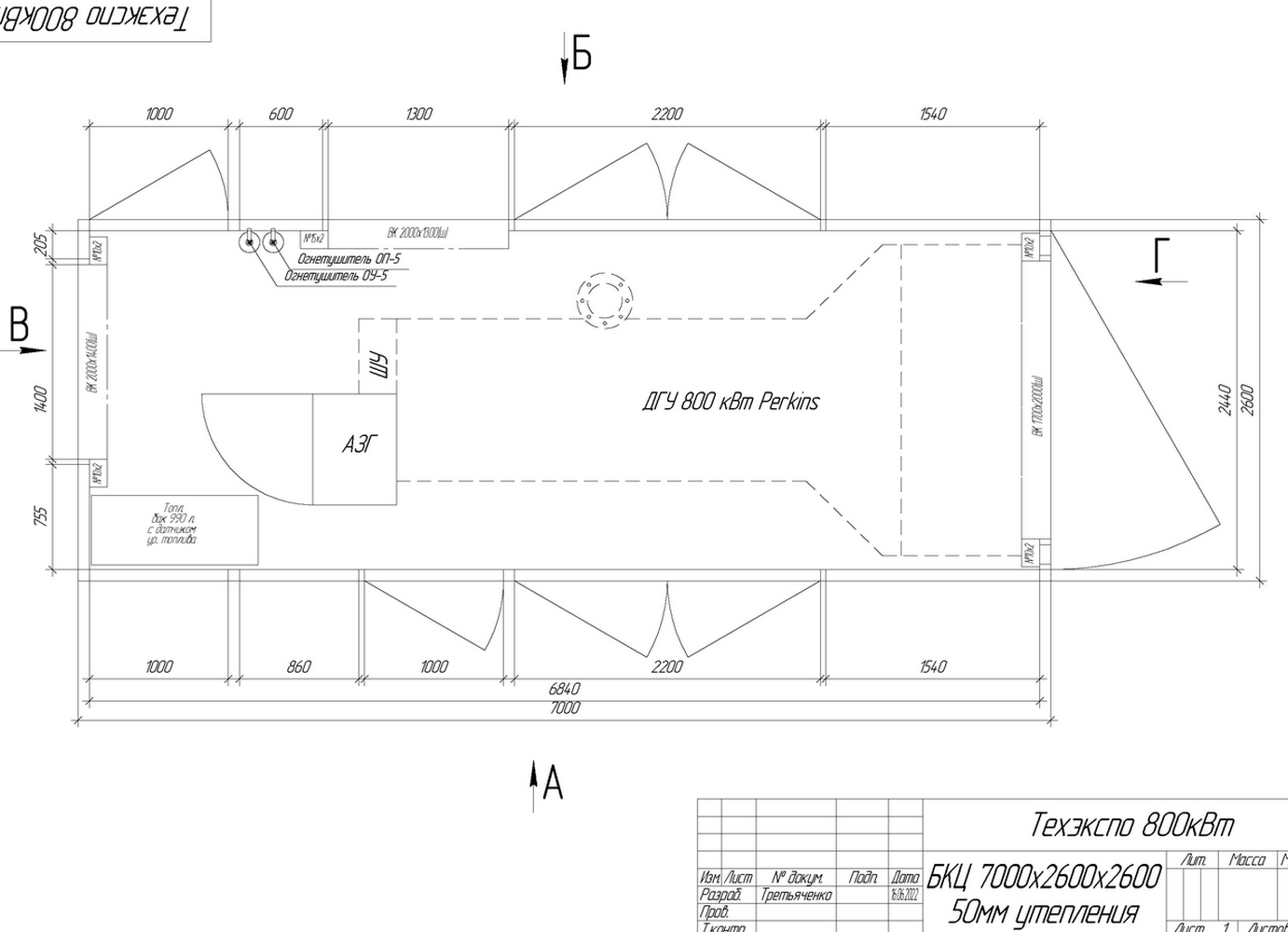
TE.800С-T400-2RN DG is based on a Perkins (UK) 4008-30TAG2 engine and a Leroy Somer (France) LSA 49.1 L11 current generator. DG power: 808 kW. The genset will be used as a standby power source. The DG is controlled by a DSE 8610 controller with a parallel operation function.

The size of a heat-insulated all-welded container is 7000x2400x2560 mm. The DG is equipped with systems of heating, routine and emergency lighting, fire alarm and automatic aerosol fire extinguishing. The diesel generator is equipped with an all-welded 1000-liter fuel tank, an automatic oil pumping system, a separator filter, a generator circuit breaker with a motor drive 1600A EKF.

Order the budget estimation for a similar project - make a request to

We’ll send an engineer to your site for free pre-project inspection, select equipment, develop the budget.

Next project

Форма заявки