Email:

Request in messenger:

Phone number and open hours:
+7 (812) 207-52-94
Mon-Sun 7am – 8pm
Call to order:
8 (800) 511-59-77
Selected city:
St. Petersburg
Mitrofanevskoe Highway, 8AB
  • Надежные бренды и подтвержденные стандарты качества:
Call to order: 8 (800) 511-59-77

Two Cummins diesel gensets by 800 kW to Taborny gold field (NordGold)

Total capacity 1600 kW
Client Rudnik Taborny LLC
Фото
Solution

In November 2022, Techexpo company delivered two DGs with the power of 800 kW each with a Cummins QST-30 G4 engine for operation in parallel as part of a power supply package to Taborny gold field in Yakutia.

Taborny gold field of the NordGold international gold producer is a part of promising Gross mining cluster in the southwest of Yakutia. At the Taborny mine, gold-bearing ore is mined by open pit mining, and the mining and processing capacity reaches 7.5 million tons of ore per year.

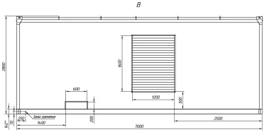
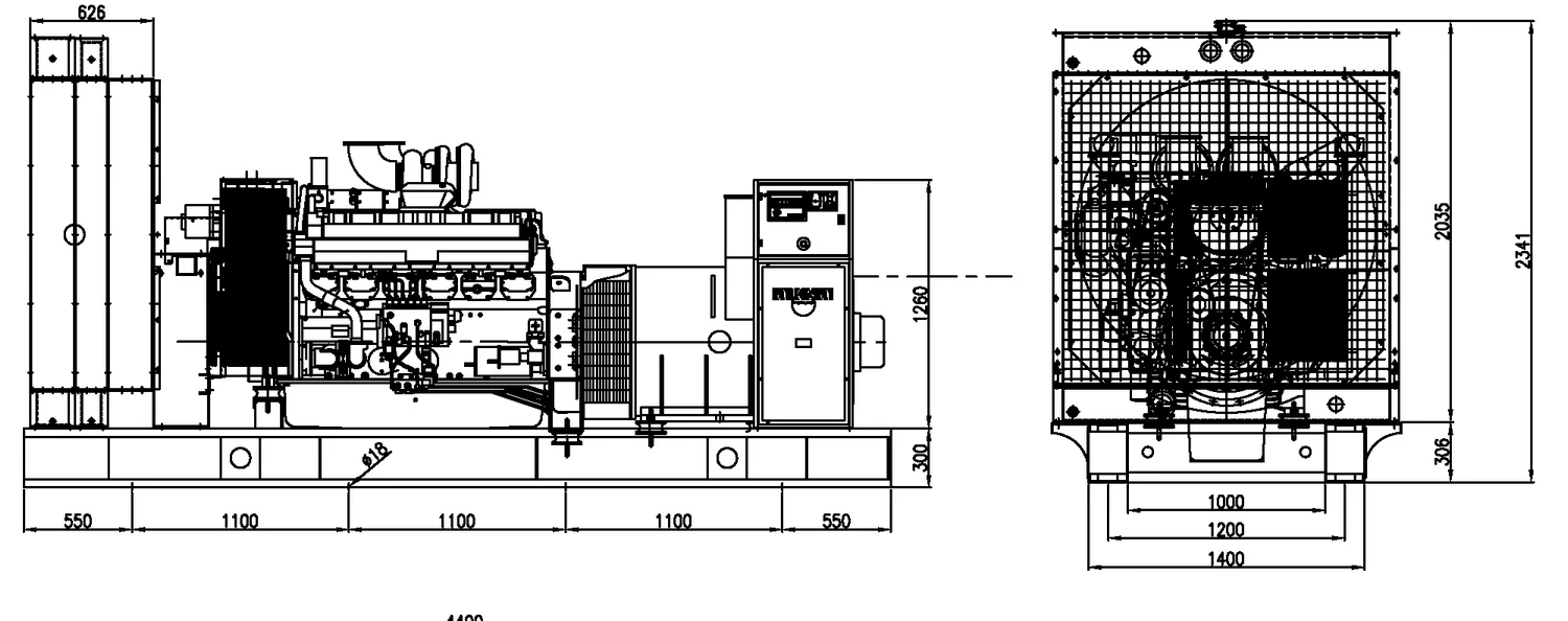
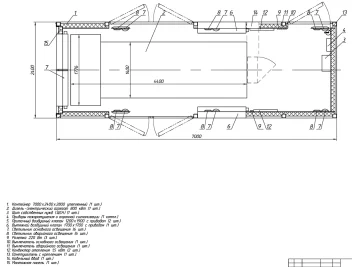
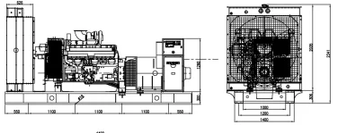
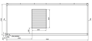
TE.800С-T 400-2РRN (800 kW) containerized diesel generators are based on a Cummins QST30-G4 engine and a Stamford HCI634J generator. Containers dimensions: 7000х2500х2850 mm. The DGs are equipped with emergency and main lighting systems, supply and exhaust ventilation, heating system, fire alarm and fire extinguishing system, and an auxiliary board.

Cummins engine, QST series is one of the key technical requirements of the project. The same engine is installed on the diesel gensets of the Taborny mine. To synchronize new TE.800С-T400-2RN DGs with existing AtlasCopco QAC-1 (6 pcs.) controlled by a QC 4003 controller, the control system of the delivered DGs was modernized:

    • the control panel was replaced with a DEIF 150 controller;
    • motorized drive with automatic devices was changed.

After the equipment was delivered to the Taborny mine, specialists from the Techexpo maintenance department carried out installation and commissioning, set up the parallel operation of the diesel gensets.

Spares and tool kits (spare parts, tools, materials) were additionally delivered to two gensets:

    • oil filters 22 pcs.
    • primary fuel filter 6 pcs.
    • secondary fuel filter 6 pcs.
    • air filter 24 pcs.
    • fan belt 4 pcs.
    • temperature regulator 6 pcs.
    • temperature regulator gasket 3 pcs.
    • oil pressure sensor 3 pcs.
    • temperature sensor 3 pcs.
    • back oil seal 3 pcs.
    • fuel nozzle 12 pcs.

Order the budget estimation for a similar project - make a request to

We’ll send an engineer to your site for free pre-project inspection, select equipment, develop the budget.

Next project

Форма заявки