Email:

Request in messenger:

Phone number and open hours:
+7 (812) 207-52-94
Mon-Sun 7am – 8pm
Call to order:
8 (800) 511-59-77
Selected city:
St. Petersburg
Mitrofanevskoe Highway, 8AB
  • Надежные бренды и подтвержденные стандарты качества:
Call to order: 8 (800) 511-59-77

Engineering and manufacturing a 1 MW DG for Prokshino multi-purpose complex in Moscow (А101 developer)

Total capacity 1000 kW
Client А101 group of companies
Фото
Solution

In July 2022, Techexpo company delivered a 1000 kW containerized DG for Prokshino multi-purpose complex in Moscow.

Prokshino administrative office building with retail space and underground parking will be a part of a large business district next to the Prokshino residential area at the address Moscow city, Sosenskoe settlement, lot 12, near the village Nikolo-Khovanskoe.

DG purpose: business center backup power supply.

The genset is manufactured at the own production of Techexpo according to the project, which was developed by the company's designers individually for the new business center.

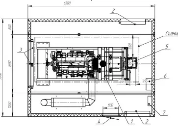
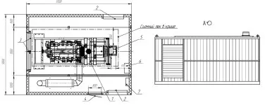
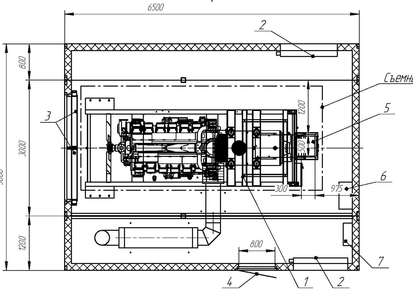
1000 kW TE.1000С-Т400-2RN containerized DG is based on the Mitsubishi S12R-PTA-C diesel engine. A 2000-liter fuel tank is built into the DG frame. The genset is controlled by ComAp AMF20 controller. The DG is equipped with an auxiliary board, fire alarm and automatic fire extinguishing system, routine and emergency lighting, supply and exhaust ventilation, heating systems. Outdoor lighting is provided by a hidden LED strip above the front door and along the perimeter of the container wall.

According to the project, the DG is adjacent to TP-21 20/0.4 kV of the business center. The main DG parameters (height, width, container geometry) are adopted based on the dimensions of TP-21.

The all-welded container has a composite structure; when assembled, its dimensions are 6500x5000x3000 mm. The design feature is a DG muffler mounted inside the container. The outer surface of the gas exhaust pipelines of the DG in the places of possible access of the maintenance staff is insulated with non-combustible material, the pass-through units of the gas exhaust pipeline are isolated relative to the walls of the container and protected from precipitations. A removable roof is provided over the DG location.

The container has non-combustible thermal insulation 100 mm thick, the container body provides strength, and the all-welded floor is made of corrugated steel 3 mm thick and is welded to the metal base and the transverse beams of the container. The roof is flat, with a slope and an external drain.

Delivery of equipment to Moscow was carried out from production in St. Petersburg. The DGs were packed in an industrial heat-shrink film to protect the equipment during transportation from external influences.

Techexpo engineers carried out assembly and commissioning activities at the site.

Order the budget estimation for a similar project - make a request to

We’ll send an engineer to your site for free pre-project inspection, select equipment, develop the budget.

Next project

Форма заявки