Email:

Request in messenger:

Phone number and open hours:
+7 (812) 207-52-94
Mon-Sun 7am – 8pm
Call to order:
8 (800) 511-59-77
Selected city:
St. Petersburg
Mitrofanevskoe Highway, 8AB
  • Надежные бренды и подтвержденные стандарты качества:
Call to order: 8 (800) 511-59-77

640 kW DG Cummins for a hoisting crane to Murmansk

Total capacity 640 kW
Client SMM CJSC
Фото
Solution

In 2022, Techexpo company delivered a 640 kW containerized genset to Murmansk to power a mobile harbor crane.

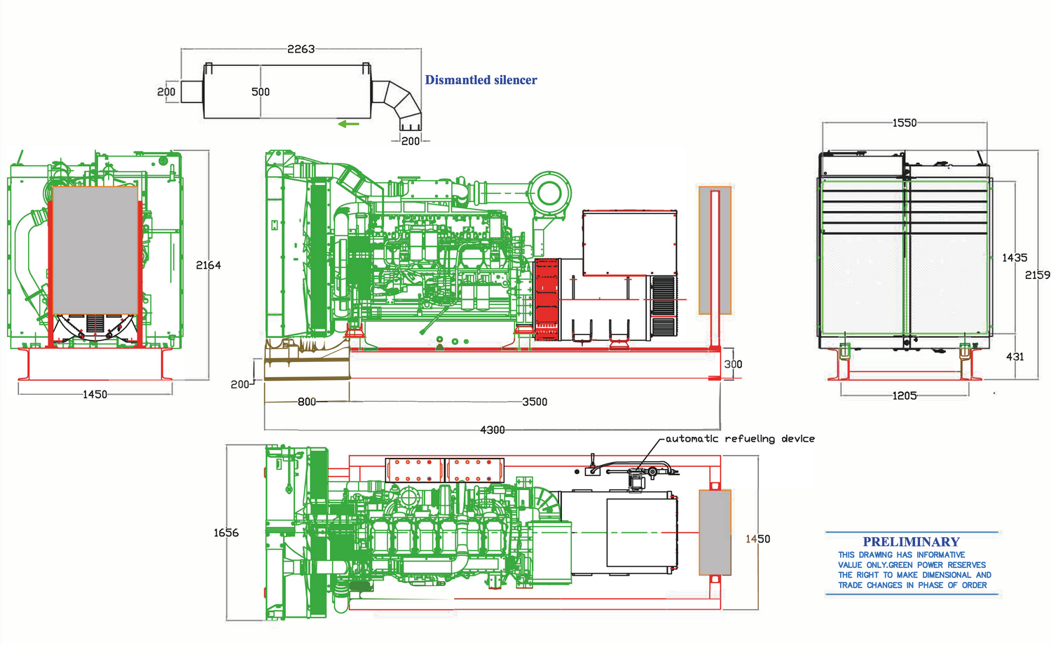
The genset Green Power GP880 is the main electrical power source.

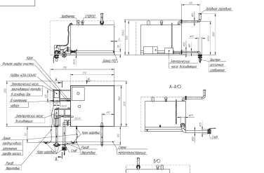
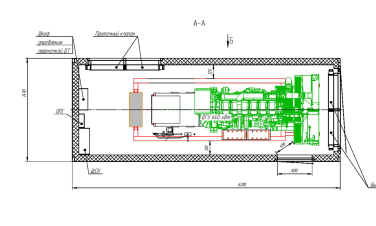
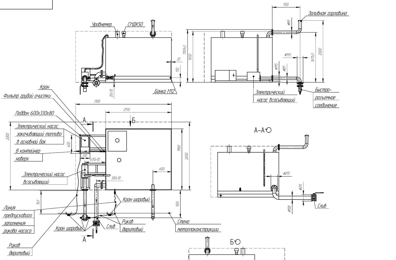
The containerized DG is mounted directly on the structure of the harbor crane. To ensure the long-term operation of the genset, Techexpo company manufactured an additional 5000-liter fuel tank, which is installed inside the crane metal structure. From this tank, the main DG fuel tank will be replenished automatically.

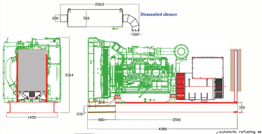
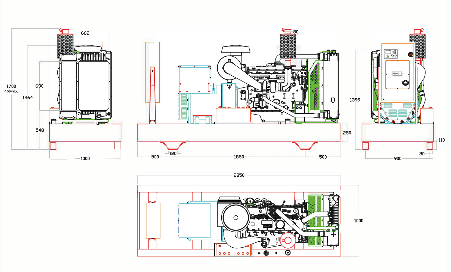
The genset containerized Green Power GP880 (Italy):

  • 640 kW power
  • Cummins QSK23G3 diesel engine
  • Marelli MJB 400 MA4 generator
  • 900-liter built-in fuel tank
  • Container: all-welded anti-vandal, Sever type
  • Heat insulation: Container insulation 100 mm. The container is designed to operate in the ambient temperature range from -40 to +50°С
  • Container dimensions: 6000х2400х2700 mm. (LхWхH)
  • Industrial muffler
  • Heating and ventilating system
  • Routine and emergency lighting
  • Auxiliaries board
  • Diesel fuel transfer control cabinet
  • Automatic alarm system and aerosol fire extinguishing

Additional fuel tank:

  • Capacity: 500 liters.
  • Dimensions: 3100х2130х1980 mm.
  • Filling port
  • Electrical sucking pump
  • Electrical pump pumping fuel into the main tank
  • Coarse-mesh filter
  • Fuel-dumping system
  • VL-023 phosphorescent anti-corrosive primer is applied inside the tank

Order the budget estimation for a similar project - make a request to

We’ll send an engineer to your site for free pre-project inspection, select equipment, develop the budget.

Next project

Форма заявки