Supply of 640 kW DGS for the surgical building of the children's hospital in Lipetsk
| Total capacity |
640 kW
|
| Client |
Development company |
| Фото |
|
| Task |
The task was to solve the problem with the backup power supply of a large social construction facility and provide electricity to the construction site staff. |
| Solution |
Supply of a low-power diesel generator set in a container made of sandwich panels. |
As part of this project, Techexpo managed to participate in the work on a large social facility: the construction of the surgical building of the Regional Children's Hospital in Lipetsk under State Contract No. 40 dated 04/02/2023. Techexpo supplied the construction contractor with a diesel generator set with a capacity of 640 kW.
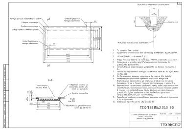
DGS TE.640C-T400-1RN based on the Baudouin engine was manufactured in a container made of sandwich panels with dimensions 6000x2300x2965 mm.

Technical characteristics of TE.640S-T400-1RN
- Main power: 640 kW / 800 kVA
- Standby power: 704 kW / 880 kVA
- Baudouin engine, 8M33G900/5
- The engine capacity is 26.14 liters
- The number of cylinders and their arrangement are 8 / V-shaped
- Fuel consumption at 100% load is 174.2 l/hour
- Fuel consumption at 75% load is 129.7 l/hour
- The mass of the DGS is 7,500 kg
- Control panel: Lovato RGK800
The container is equipped with an industrial muffler, a lighting system (main) and heating (convectors).
Dimensional drawing and general view drawing
The DGS has passed all the necessary tests under load. The warranty period for a diesel generator set is 36 months, or 2,000 operating hours, and 12 months for a container.
A photo report on Techexpo equipment from the construction site, as well as drawings made by Techexpo designers for this project, can be found in the gallery below.
Supply of 640 kW DGS for the surgical building of the children's hospital in Lipetsk – фото 1 из 7
Supply of 640 kW DGS for the surgical building of the children's hospital in Lipetsk – фото 2 из 7
Supply of 640 kW DGS for the surgical building of the children's hospital in Lipetsk – фото 3 из 7
Supply of 640 kW DGS for the surgical building of the children's hospital in Lipetsk – фото 4 из 7
Supply of 640 kW DGS for the surgical building of the children's hospital in Lipetsk – фото 5 из 7
Supply of 640 kW DGS for the surgical building of the children's hospital in Lipetsk – фото 6 из 7
Supply of 640 kW DGS for the surgical building of the children's hospital in Lipetsk – фото 7 из 7
Supply of 640 kW DGS for the surgical building of the children's hospital in Lipetsk – чертеж из проектной документации 1 из 3
Supply of 640 kW DGS for the surgical building of the children's hospital in Lipetsk – чертеж из проектной документации 2 из 3
Supply of 640 kW DGS for the surgical building of the children's hospital in Lipetsk – чертеж из проектной документации 3 из 3
We’ll send an engineer to your site for free pre-project inspection, select equipment, develop the budget.