Email:

Request in messenger:

Phone number and open hours:
+7 (812) 207-52-94
Mon-Sun 7am – 8pm
Call to order:
8 (800) 511-59-77
Selected city:
St. Petersburg
Mitrofanevskoe Highway, 8AB
  • Надежные бренды и подтвержденные стандарты качества:
Call to order: 8 (800) 511-59-77

Radiator supply for Mitsubishi engine, Moscow

Total capacity 16 kW
Client Data Center
Фото
Task The radiator is an element of the cooling system of an Italian-made diesel generator set. A diesel engine generates a large amount of heat during operation, and if the heat is not effectively removed, it can lead to overheating and equipment failure.
Solution The replacement of the radiator to ensure the correct and long-term operation of the Customer's DGS.

The main task of the cooling system in a diesel generator set is to keep the engine within the optimal operating temperature. It usually ranges from 85˚ to 95˚C. This is necessary to prevent overheating and increase the service life of all components of the DGS.

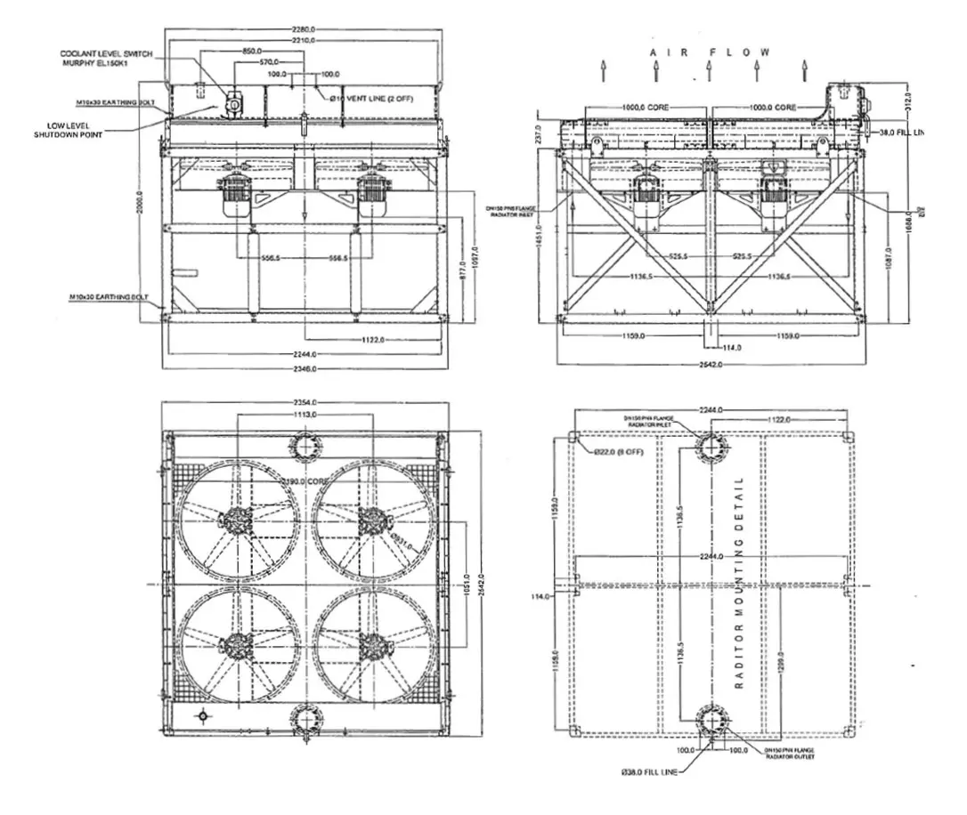
It was to solve this problem that the Customer contacted Techexpo. The DGS, which needed a radiator replacement, is powered by a Mitsubishi S16RF1-PTAW2 engine. The best option was the Turkish-made Panoto 828 1041 CLM radiator.

Radiator Specifications

  • Dimensions (WxLxH) — 2542x2000x2542 mm
  • The volume of coolant — 197 l
  • The capacity of the expansion tank — 130 l
  • The coolant capacity of the pipeline system — ≈400 l
  • The total volume of coolant in the system — 848 l

Characteristics of electric motors of radiator fans

  • Number of fans – 4
  • The power of one electric motor is 4 kW
  • Number of phases — 3
  • Frequency — 50 Hz
  • Voltage — 400 V
  • Rotation speed — 1455 rpm
  • Brand of radiator electrical equipment — SIEMENS

techexpo-datacentre-2026 (25).jpg

Panoto 828 1041 CLM drawing of the general view


The radiator was delivered by Techexpo to the Customer's warehouse in Moscow. The warranty for the quality of the supplied equipment is 12 months.


Order the budget estimation for a similar project - make a request to

We’ll send an engineer to your site for free pre-project inspection, select equipment, develop the budget.

Next project

Форма заявки