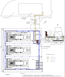
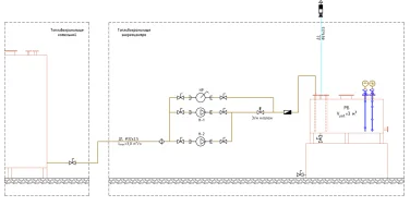
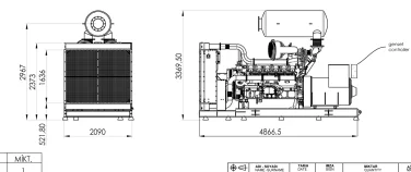
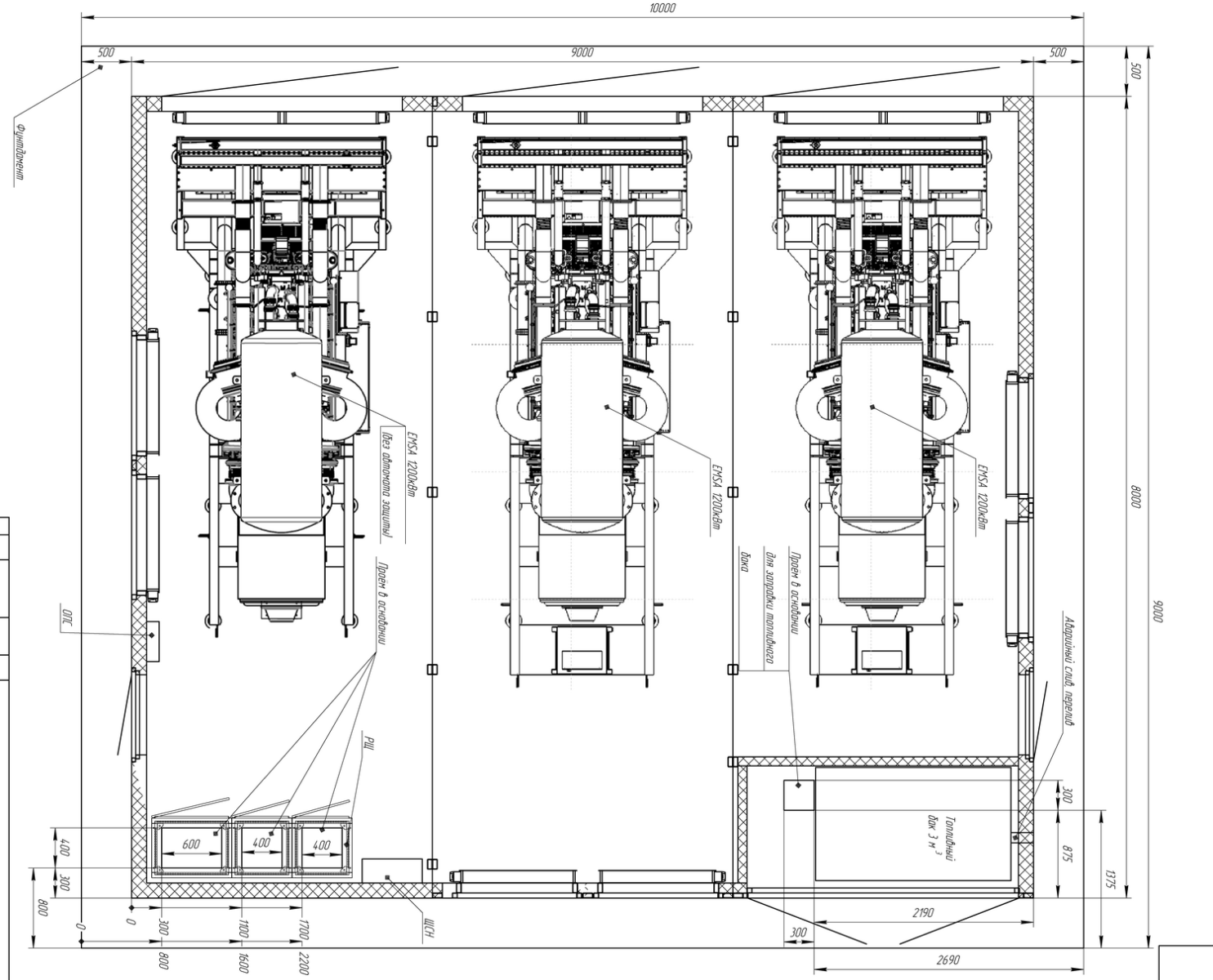
Autonomous generating center (AGC) consisting of three diesel generators with a total capacity of 3600 kW for the Wildberries warehouse complex – фото 1 из 95
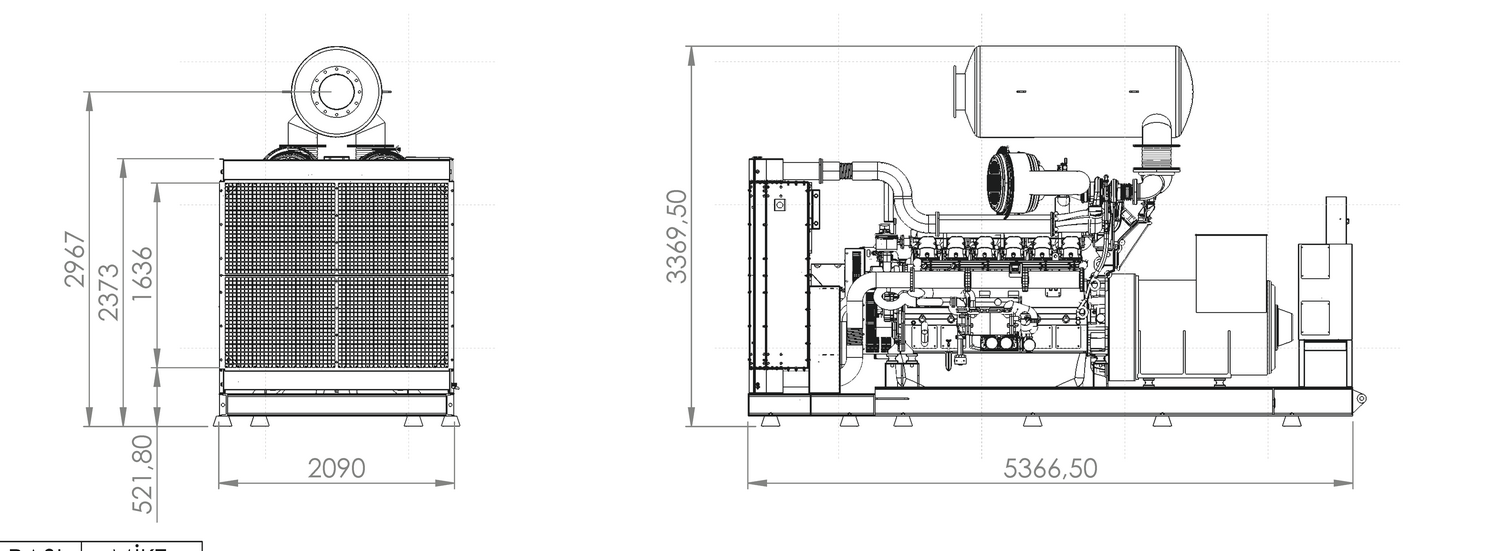
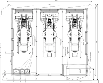
Autonomous generating center (AGC) consisting of three diesel generators with a total capacity of 3600 kW for the Wildberries warehouse complex – фото 2 из 95
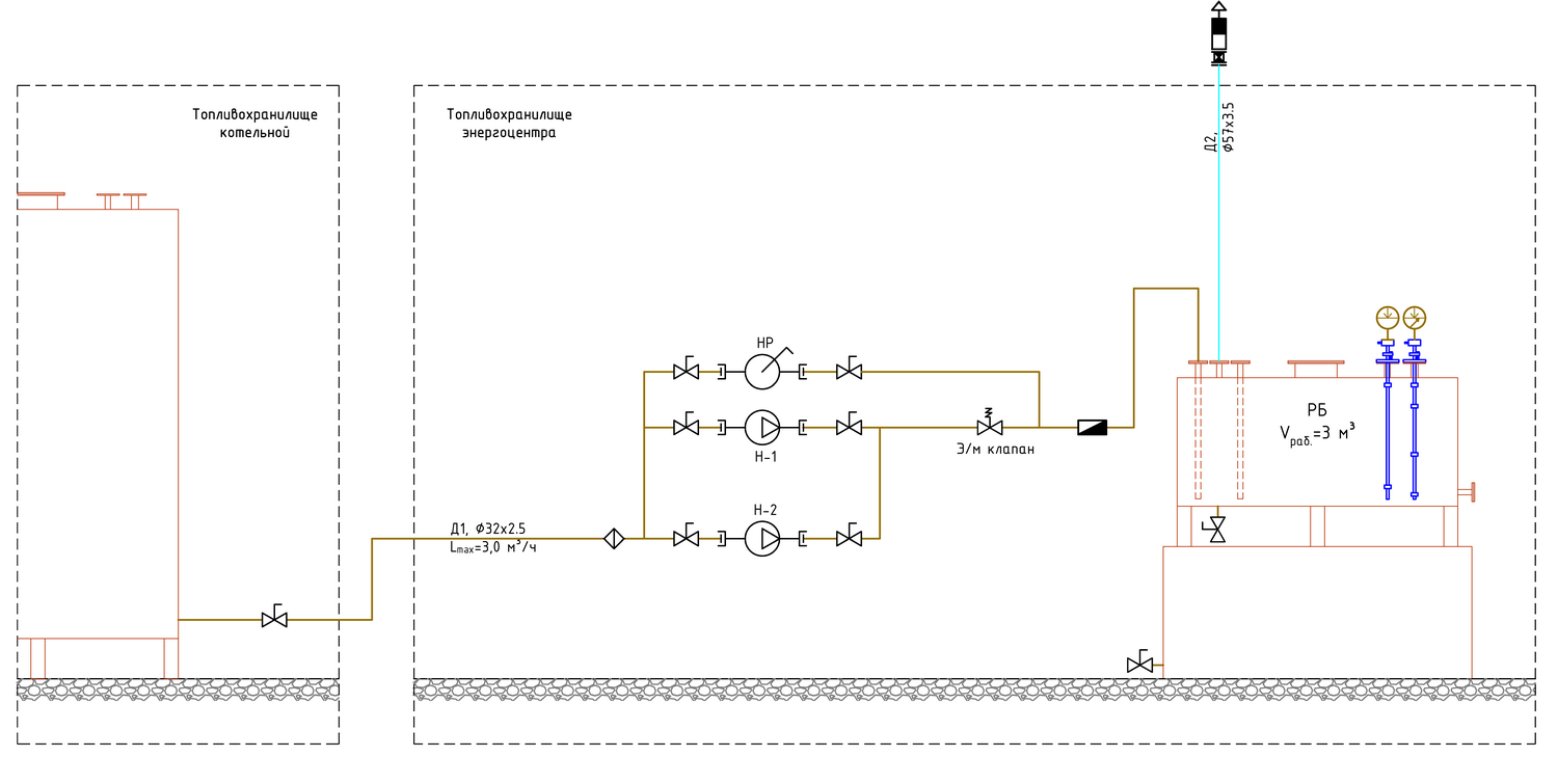
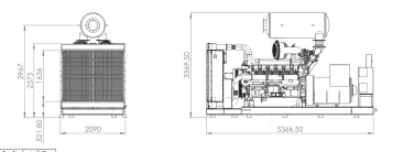
Autonomous generating center (AGC) consisting of three diesel generators with a total capacity of 3600 kW for the Wildberries warehouse complex – фото 3 из 95
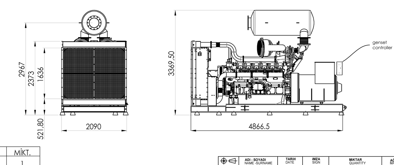
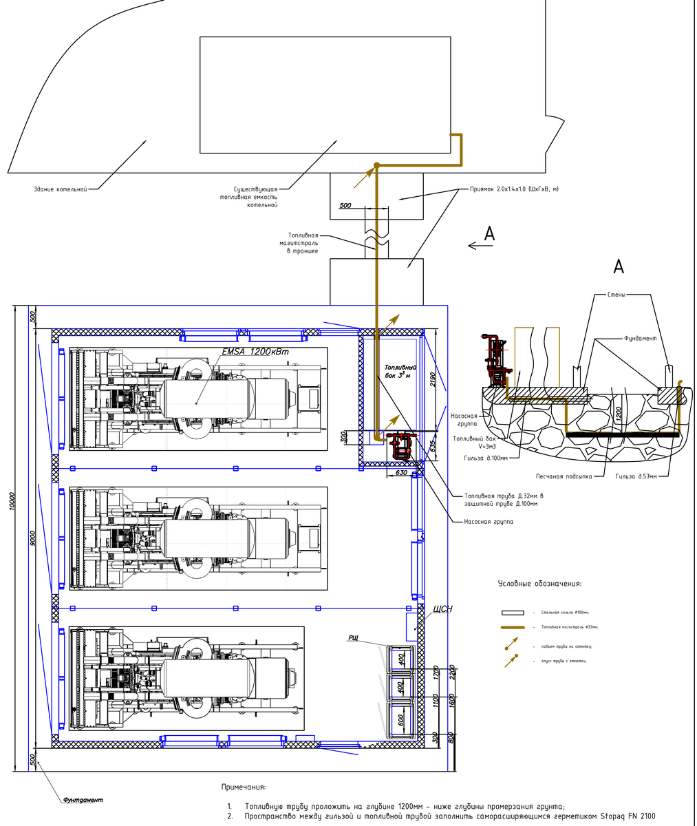
Autonomous generating center (AGC) consisting of three diesel generators with a total capacity of 3600 kW for the Wildberries warehouse complex – фото 4 из 95
Autonomous generating center (AGC) consisting of three diesel generators with a total capacity of 3600 kW for the Wildberries warehouse complex – фото 5 из 95
Autonomous generating center (AGC) consisting of three diesel generators with a total capacity of 3600 kW for the Wildberries warehouse complex – фото 6 из 95
Autonomous generating center (AGC) consisting of three diesel generators with a total capacity of 3600 kW for the Wildberries warehouse complex – фото 7 из 95
Autonomous generating center (AGC) consisting of three diesel generators with a total capacity of 3600 kW for the Wildberries warehouse complex – фото 8 из 95
Autonomous generating center (AGC) consisting of three diesel generators with a total capacity of 3600 kW for the Wildberries warehouse complex – фото 9 из 95
Autonomous generating center (AGC) consisting of three diesel generators with a total capacity of 3600 kW for the Wildberries warehouse complex – фото 10 из 95
Autonomous generating center (AGC) consisting of three diesel generators with a total capacity of 3600 kW for the Wildberries warehouse complex – фото 11 из 95
Autonomous generating center (AGC) consisting of three diesel generators with a total capacity of 3600 kW for the Wildberries warehouse complex – фото 12 из 95
Autonomous generating center (AGC) consisting of three diesel generators with a total capacity of 3600 kW for the Wildberries warehouse complex – фото 13 из 95
Autonomous generating center (AGC) consisting of three diesel generators with a total capacity of 3600 kW for the Wildberries warehouse complex – фото 14 из 95
Autonomous generating center (AGC) consisting of three diesel generators with a total capacity of 3600 kW for the Wildberries warehouse complex – фото 15 из 95
Autonomous generating center (AGC) consisting of three diesel generators with a total capacity of 3600 kW for the Wildberries warehouse complex – фото 16 из 95
Autonomous generating center (AGC) consisting of three diesel generators with a total capacity of 3600 kW for the Wildberries warehouse complex – фото 17 из 95
Autonomous generating center (AGC) consisting of three diesel generators with a total capacity of 3600 kW for the Wildberries warehouse complex – фото 18 из 95
Autonomous generating center (AGC) consisting of three diesel generators with a total capacity of 3600 kW for the Wildberries warehouse complex – фото 19 из 95
Autonomous generating center (AGC) consisting of three diesel generators with a total capacity of 3600 kW for the Wildberries warehouse complex – фото 20 из 95
Autonomous generating center (AGC) consisting of three diesel generators with a total capacity of 3600 kW for the Wildberries warehouse complex – фото 21 из 95
Autonomous generating center (AGC) consisting of three diesel generators with a total capacity of 3600 kW for the Wildberries warehouse complex – фото 22 из 95
Autonomous generating center (AGC) consisting of three diesel generators with a total capacity of 3600 kW for the Wildberries warehouse complex – фото 23 из 95
Autonomous generating center (AGC) consisting of three diesel generators with a total capacity of 3600 kW for the Wildberries warehouse complex – фото 24 из 95
Autonomous generating center (AGC) consisting of three diesel generators with a total capacity of 3600 kW for the Wildberries warehouse complex – фото 25 из 95
Autonomous generating center (AGC) consisting of three diesel generators with a total capacity of 3600 kW for the Wildberries warehouse complex – фото 26 из 95
Autonomous generating center (AGC) consisting of three diesel generators with a total capacity of 3600 kW for the Wildberries warehouse complex – фото 27 из 95
Autonomous generating center (AGC) consisting of three diesel generators with a total capacity of 3600 kW for the Wildberries warehouse complex – фото 28 из 95
Autonomous generating center (AGC) consisting of three diesel generators with a total capacity of 3600 kW for the Wildberries warehouse complex – фото 29 из 95
Autonomous generating center (AGC) consisting of three diesel generators with a total capacity of 3600 kW for the Wildberries warehouse complex – фото 30 из 95
Autonomous generating center (AGC) consisting of three diesel generators with a total capacity of 3600 kW for the Wildberries warehouse complex – фото 31 из 95
Autonomous generating center (AGC) consisting of three diesel generators with a total capacity of 3600 kW for the Wildberries warehouse complex – фото 32 из 95
Autonomous generating center (AGC) consisting of three diesel generators with a total capacity of 3600 kW for the Wildberries warehouse complex – фото 33 из 95
Autonomous generating center (AGC) consisting of three diesel generators with a total capacity of 3600 kW for the Wildberries warehouse complex – фото 34 из 95
Autonomous generating center (AGC) consisting of three diesel generators with a total capacity of 3600 kW for the Wildberries warehouse complex – фото 35 из 95
Autonomous generating center (AGC) consisting of three diesel generators with a total capacity of 3600 kW for the Wildberries warehouse complex – фото 36 из 95
Autonomous generating center (AGC) consisting of three diesel generators with a total capacity of 3600 kW for the Wildberries warehouse complex – фото 37 из 95
Autonomous generating center (AGC) consisting of three diesel generators with a total capacity of 3600 kW for the Wildberries warehouse complex – фото 38 из 95
Autonomous generating center (AGC) consisting of three diesel generators with a total capacity of 3600 kW for the Wildberries warehouse complex – фото 39 из 95
Autonomous generating center (AGC) consisting of three diesel generators with a total capacity of 3600 kW for the Wildberries warehouse complex – фото 40 из 95
Autonomous generating center (AGC) consisting of three diesel generators with a total capacity of 3600 kW for the Wildberries warehouse complex – фото 41 из 95
Autonomous generating center (AGC) consisting of three diesel generators with a total capacity of 3600 kW for the Wildberries warehouse complex – фото 42 из 95
Autonomous generating center (AGC) consisting of three diesel generators with a total capacity of 3600 kW for the Wildberries warehouse complex – фото 43 из 95
Autonomous generating center (AGC) consisting of three diesel generators with a total capacity of 3600 kW for the Wildberries warehouse complex – фото 44 из 95
Autonomous generating center (AGC) consisting of three diesel generators with a total capacity of 3600 kW for the Wildberries warehouse complex – фото 45 из 95
Autonomous generating center (AGC) consisting of three diesel generators with a total capacity of 3600 kW for the Wildberries warehouse complex – фото 46 из 95
Autonomous generating center (AGC) consisting of three diesel generators with a total capacity of 3600 kW for the Wildberries warehouse complex – фото 47 из 95
Autonomous generating center (AGC) consisting of three diesel generators with a total capacity of 3600 kW for the Wildberries warehouse complex – фото 48 из 95
Autonomous generating center (AGC) consisting of three diesel generators with a total capacity of 3600 kW for the Wildberries warehouse complex – фото 49 из 95
Autonomous generating center (AGC) consisting of three diesel generators with a total capacity of 3600 kW for the Wildberries warehouse complex – фото 50 из 95
Autonomous generating center (AGC) consisting of three diesel generators with a total capacity of 3600 kW for the Wildberries warehouse complex – фото 51 из 95
Autonomous generating center (AGC) consisting of three diesel generators with a total capacity of 3600 kW for the Wildberries warehouse complex – фото 52 из 95
Autonomous generating center (AGC) consisting of three diesel generators with a total capacity of 3600 kW for the Wildberries warehouse complex – фото 53 из 95
Autonomous generating center (AGC) consisting of three diesel generators with a total capacity of 3600 kW for the Wildberries warehouse complex – фото 54 из 95
Autonomous generating center (AGC) consisting of three diesel generators with a total capacity of 3600 kW for the Wildberries warehouse complex – фото 55 из 95
Autonomous generating center (AGC) consisting of three diesel generators with a total capacity of 3600 kW for the Wildberries warehouse complex – фото 56 из 95
Autonomous generating center (AGC) consisting of three diesel generators with a total capacity of 3600 kW for the Wildberries warehouse complex – фото 57 из 95
Autonomous generating center (AGC) consisting of three diesel generators with a total capacity of 3600 kW for the Wildberries warehouse complex – фото 58 из 95
Autonomous generating center (AGC) consisting of three diesel generators with a total capacity of 3600 kW for the Wildberries warehouse complex – фото 59 из 95
Autonomous generating center (AGC) consisting of three diesel generators with a total capacity of 3600 kW for the Wildberries warehouse complex – фото 60 из 95
Autonomous generating center (AGC) consisting of three diesel generators with a total capacity of 3600 kW for the Wildberries warehouse complex – фото 61 из 95
Autonomous generating center (AGC) consisting of three diesel generators with a total capacity of 3600 kW for the Wildberries warehouse complex – фото 62 из 95
Autonomous generating center (AGC) consisting of three diesel generators with a total capacity of 3600 kW for the Wildberries warehouse complex – фото 63 из 95
Autonomous generating center (AGC) consisting of three diesel generators with a total capacity of 3600 kW for the Wildberries warehouse complex – фото 64 из 95
Autonomous generating center (AGC) consisting of three diesel generators with a total capacity of 3600 kW for the Wildberries warehouse complex – фото 65 из 95
Autonomous generating center (AGC) consisting of three diesel generators with a total capacity of 3600 kW for the Wildberries warehouse complex – фото 66 из 95
Autonomous generating center (AGC) consisting of three diesel generators with a total capacity of 3600 kW for the Wildberries warehouse complex – фото 67 из 95
Autonomous generating center (AGC) consisting of three diesel generators with a total capacity of 3600 kW for the Wildberries warehouse complex – фото 68 из 95
Autonomous generating center (AGC) consisting of three diesel generators with a total capacity of 3600 kW for the Wildberries warehouse complex – фото 69 из 95
Autonomous generating center (AGC) consisting of three diesel generators with a total capacity of 3600 kW for the Wildberries warehouse complex – фото 70 из 95
Autonomous generating center (AGC) consisting of three diesel generators with a total capacity of 3600 kW for the Wildberries warehouse complex – фото 71 из 95
Autonomous generating center (AGC) consisting of three diesel generators with a total capacity of 3600 kW for the Wildberries warehouse complex – фото 72 из 95
Autonomous generating center (AGC) consisting of three diesel generators with a total capacity of 3600 kW for the Wildberries warehouse complex – фото 73 из 95
Autonomous generating center (AGC) consisting of three diesel generators with a total capacity of 3600 kW for the Wildberries warehouse complex – фото 74 из 95
Autonomous generating center (AGC) consisting of three diesel generators with a total capacity of 3600 kW for the Wildberries warehouse complex – фото 75 из 95
Autonomous generating center (AGC) consisting of three diesel generators with a total capacity of 3600 kW for the Wildberries warehouse complex – фото 76 из 95
Autonomous generating center (AGC) consisting of three diesel generators with a total capacity of 3600 kW for the Wildberries warehouse complex – фото 77 из 95
Autonomous generating center (AGC) consisting of three diesel generators with a total capacity of 3600 kW for the Wildberries warehouse complex – фото 78 из 95
Autonomous generating center (AGC) consisting of three diesel generators with a total capacity of 3600 kW for the Wildberries warehouse complex – фото 79 из 95
Autonomous generating center (AGC) consisting of three diesel generators with a total capacity of 3600 kW for the Wildberries warehouse complex – фото 80 из 95
Autonomous generating center (AGC) consisting of three diesel generators with a total capacity of 3600 kW for the Wildberries warehouse complex – фото 81 из 95
Autonomous generating center (AGC) consisting of three diesel generators with a total capacity of 3600 kW for the Wildberries warehouse complex – фото 82 из 95
Autonomous generating center (AGC) consisting of three diesel generators with a total capacity of 3600 kW for the Wildberries warehouse complex – фото 83 из 95
Autonomous generating center (AGC) consisting of three diesel generators with a total capacity of 3600 kW for the Wildberries warehouse complex – фото 84 из 95
Autonomous generating center (AGC) consisting of three diesel generators with a total capacity of 3600 kW for the Wildberries warehouse complex – фото 85 из 95
Autonomous generating center (AGC) consisting of three diesel generators with a total capacity of 3600 kW for the Wildberries warehouse complex – фото 86 из 95
Autonomous generating center (AGC) consisting of three diesel generators with a total capacity of 3600 kW for the Wildberries warehouse complex – фото 87 из 95
Autonomous generating center (AGC) consisting of three diesel generators with a total capacity of 3600 kW for the Wildberries warehouse complex – фото 88 из 95
Autonomous generating center (AGC) consisting of three diesel generators with a total capacity of 3600 kW for the Wildberries warehouse complex – фото 89 из 95
Autonomous generating center (AGC) consisting of three diesel generators with a total capacity of 3600 kW for the Wildberries warehouse complex – фото 90 из 95
Autonomous generating center (AGC) consisting of three diesel generators with a total capacity of 3600 kW for the Wildberries warehouse complex – фото 91 из 95
Autonomous generating center (AGC) consisting of three diesel generators with a total capacity of 3600 kW for the Wildberries warehouse complex – фото 92 из 95
Autonomous generating center (AGC) consisting of three diesel generators with a total capacity of 3600 kW for the Wildberries warehouse complex – фото 93 из 95
Autonomous generating center (AGC) consisting of three diesel generators with a total capacity of 3600 kW for the Wildberries warehouse complex – фото 94 из 95
Autonomous generating center (AGC) consisting of three diesel generators with a total capacity of 3600 kW for the Wildberries warehouse complex – фото 95 из 95