Email:

Request in messenger:

Phone number and open hours:
+7 (812) 207-52-94
Mon-Sun 7am – 8pm
Call to order:
8 (800) 511-59-77
Selected city:
St. Petersburg
Mitrofanevskoe Highway, 8AB
  • Надежные бренды и подтвержденные стандарты качества:
Call to order: 8 (800) 511-59-77

Supply of two 400 kW DGS in containers for railway construction

Total capacity 800 kW
Client Manufacturing company
Фото
Task Provision of a compact autonomous power source for the enterprise under construction and electricity delivery for the needs of equipment and personnel at the facility.
Solution Supply of low-power diesel generator sets in vandal-proof containers, with delivery to the place of operation/
Techexpo acted as a contractor in the framework of fulfilling the Customer's obligations to supply autonomous energy sources to the Integrated Development of the Murmansk Transport Hub facility — remote areas of the territory and adjacent water area on the western shore of the Kola Bay. 

At the first stage of construction, a railway line was being built from the station «Vykhodnoy», along the bridge crossing over the Tuloma River, «Murmashi-2» station and «Lavna» station. 

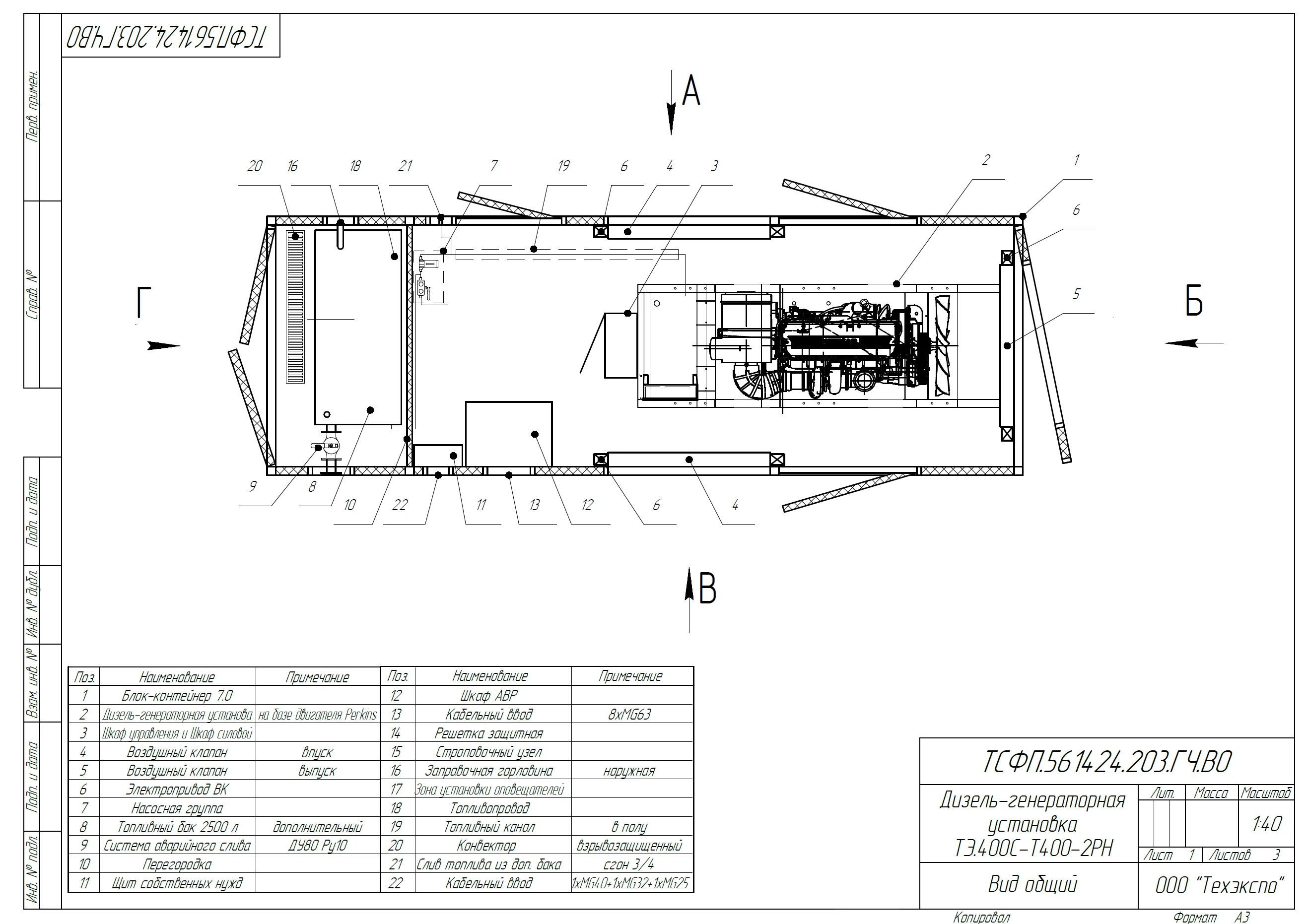
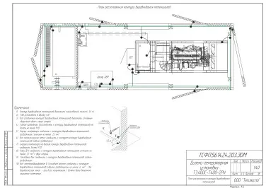
General characteristics of the supplied equipment

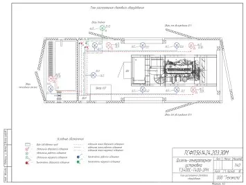
To solve the Customer's problems, the TE.400S-T400-2RN diesel generator set manufactured by Techexpo was selected in the amount of 2 units based on the Perkins engine in an all-welded container of the North M type.

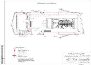
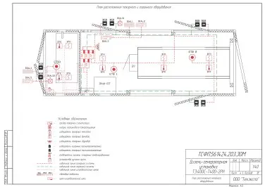
zhd-techexpo-2025 2.PNGGeneral view drawing

Technical characteristics of the TE.400S-T400-2RN diesel generator set:

  • Main power 400 kW / 500 kVA
  • Standby power 440 kW / 550 kVA
  • Perkins engine, 2506C-E15TAG2
  • Engine rotation speed 1500 rpm
  • Generator – Leroy Somer, LSA47.3M7
  • The output voltage of the generator is 400V
  • Deep Sea DSE 7320 Automatic Control Panel

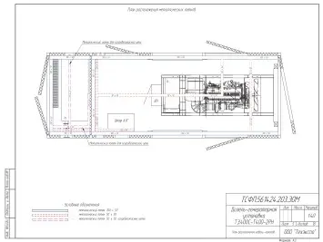
The diesel generator sets are supplied in insulated containers with dimensions of 7000x2400x2500 mm. The containers are equipped with basic (220V) and emergency (24V) lighting, automatic alarm systems (OPS) and powder fire extinguishing, supply and exhaust ventilation with automatic drive and heating system using electric convectors (220V) with thermostats.

zhd-techexpo-2025 2 (6).jpgThe layout of the lighting equipment

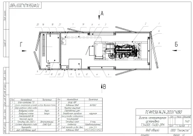
The DGS are mounted on a welded steel frame with vibration supports. In addition, the DGS are equipped with a coolant heater from the mains and a standard radiator for the cooling system.

zhd-techexpo-2025 2 (5) — копия.jpg

The color scheme of the container in the Customer's color reference

The equipment also has a filtration lubrication system, a low oil pressure protection system, a low coolant level protection system, an electronic speed controller, a muffler, protective grilles for hot engine parts and an output protection circuit breaker.

All the equipment has been tested under load from 0% to 110%.

Techexpo specialists checked the operation of the DSU under the real load provided by the Customer for 1 hour to control the parameters of the DGS. The Customer's service personnel were instructed on the rules of operation of the DGS. Techexpo has provided a 12-month warranty for the supplied equipment.


Order the budget estimation for a similar project - make a request to

We’ll send an engineer to your site for free pre-project inspection, select equipment, develop the budget.

Next project

Форма заявки