Email:

Request in messenger:

Phone number and open hours:
+7 (812) 207-52-94
Mon-Sun 7am – 8pm
Call to order:
8 (800) 511-59-77
Selected city:
St. Petersburg
Mitrofanevskoe Highway, 8AB
  • Надежные бренды и подтвержденные стандарты качества:
Call to order: 8 (800) 511-59-77

800 kW diesel genset with a Perkins engine for Fort Tower business center

Total capacity 800 kW
Client FORT GROUP DEVELOPMENT JSC
Фото
Task

Providing a large business center in Saint Petersburg with a standby power supply source

Solution

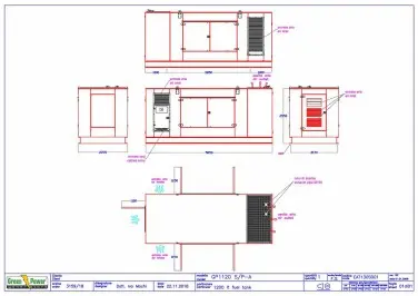
In January 2019, Techexpo delivered an own-produced 818 kW TE.800P-Т400-2RP diesel genset based on a Perkins 4008TAG2A engine (UK) and a Mecc Alte generator (Italy) for business center FORT TOWER in Saint Petersburg.

The business center corresponds to the international requirements to class A+ office centers and is nominated for a LEED Gold certificate.

The diesel genset is placed in a noise-proofing all-weather casing with autonomous diesel fuel storage for at least 8 working hours at full load. The in-built fuel tank volume is 1200 liters.

Improved electrical power quality generated by TE.800P-Т400-2RP makes it possible to power UPS boards for weak-current equipment of newly designed server rooms and switch rooms of the building. This electrical power quality is necessary for the safe operation of high-precision instruments, computers, and other facilities.

The unit is a 1-category consumer. If the standby switch has no voltage, it automatically changes from mains power supply to standby.

Order the budget estimation for a similar project - make a request to

We’ll send an engineer to your site for free pre-project inspection, select equipment, develop the budget.

Next project

Форма заявки